Eladó lakás Debrecen 225 000 000 Ft

Leírás

Kedves Befektető!

Jelenleg 4 apartman (10-25 m2) üzemel az ingatlanban, de a folytatás már a Te fantáziádra van bízva: a kialakítás és a lokáció miatt többféle hasznosítási irány is reális (további kiadás, átalakítás 1 nagy lakássá vagy akár 2 lakássá, lakás + vállalkozás kombináció stb.).

Ami adott: 1920-as években épült tégla falazatú, masszív épületben:

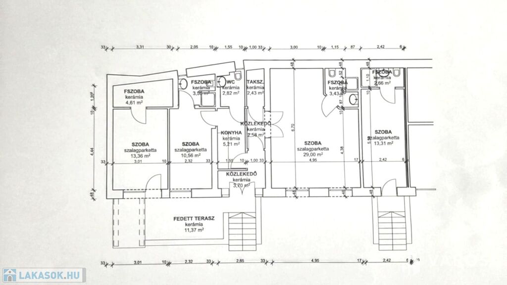
-Földszint: 97 m² lakótér
-gázcirkó fűtés,
-klímák,
-11 m2 terasz,
-Pince: 84 m² , eredetileg rendezvénytérnek tervezett helyiség (jelenleg más funkcióval használva)

Udvarban:
-3 garázs
- fedett tároló
-Kocsibeállók (több autó számára)

-Belvárosi ritkaság: parkolás + tárolási/üzemeltetési lehetőségek egy helyen

-Lokáció: valóban kiemelkedő – Debrecen belvárosában, a pláza szomszédságában, minden szolgáltatás pár percre, kiváló közlekedéssel. További információk, vagy megtekintés: Kresznóczki Ágnes +36 20 312 65 19 Városi Ingatlaniroda
(További képekért és információkért kérem hívjon!)

Lakás részletei

Ár: 225 000 000 Ft
Méret: 97 négyzetméter
Azonosító: 11597035
Irodai azonosító: 742346
Építőanyag: Tégla
Fűtés jellege: Cirkó
Ingatlan állapota: Felújított
Komfort fokozat: Összkomfort
Egész szobák: 4

Egyéb jellemzők

  • Erkély
  • Garázs
  • Klíma
  • Lift
  • Pince
  • Kertkapcsolat

Így keressen lakást négy egyszerű lépésben. Csupán 2 perc, kötelezettségek nélkül!

Szűkítse a lakások
listáját
Válassza ki a megfelelő
lakást
Írjon a hirdetőnek
Várjon a visszahívásra