Eladó lakás Debrecen 140 000 000 Ft

Leírás

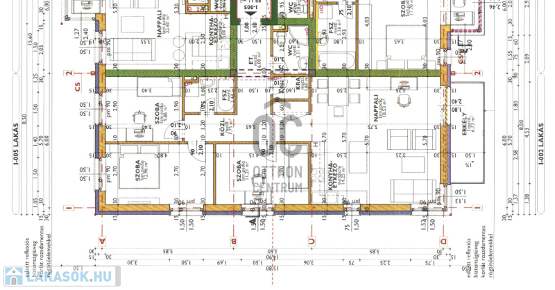
Eladó a Homokkert új építésű lakóparkjában egy új építésű, nappali + 3 szobás, 89 nm-es 1. emeleti tégla építésű lakás egy 12 lakásos társasházban. A tágas és napfényes, nyugati fekvésű nappali-étkező mellett 3 különnyíló szoba, valamint 2 fürdőszoba kerül kialakításra a lakótérben. Az épületen elhelyezett napelemeknek és a modern szigetelésnek köszönhetően a lakás fenntartási költségei rendkívül kedvezőek lesznek. A lakás helységeire látványterv készült. A kellemes hőérzetről a téli időszakban padlófűtés, míg nyáron mennyezethűtés fog gondoskodni. A belső burkolatok, ajtók és a konyhabútor még szabadon választhatóak 2026, februárjáig, így egyéni ízlésének megfelelően tudja kialakítani a belső teret. A lakás előreláthatóan kulcsrakész, beköltözhető állapotba 2026. augusztusában fog kerülni.

A környék infrastruktúrája, biztosítja a kényelmes mindennapokat, mivel iskola, gyógyszertár, orvosi rendelő, McDonalds, Interspar is található egy rövid séta távolságra.
Tökéletes lehetőség fiatalok, családok számára.
Amennyiben felkeltette érdeklődését ez a most épülő ingatlan, kérem, ne habozzon feltenni kérdéseit, hiszen szívesen állok rendelkezésére a részletekkel kapcsolatban.
További kérdésekkel és megtekintési időponttal kapcsolatban várjuk hívását a hét minden napján!

Lakás részletei

Ár: 140 000 000 Ft
Méret: 89 négyzetméter
Azonosító: 11583216
Építőanyag: Tégla
Ingatlan állapota: Kitűnő
Kilátás: utcai
Egész szobák: 4

Egyéb jellemzők

  • Erkély
  • Garázs
  • Lift
  • Kertkapcsolat
  • Tároló
  • Kocsibeálló

Így keressen lakást négy egyszerű lépésben. Csupán 2 perc, kötelezettségek nélkül!

Szűkítse a lakások
listáját
Válassza ki a megfelelő
lakást
Írjon a hirdetőnek
Várjon a visszahívásra