Eladó lakás Debrecen 106 500 000 Ft

Leírás

Projekt bemutatása

PRÉMIUM MINŐSÉGŰ, ÚJ ÉPÍTÉSŰ LAKÁSOK 95%- os KÉSZÜLTSÉGBEN ELADÓK!

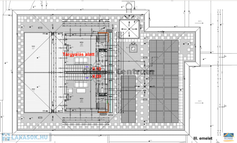
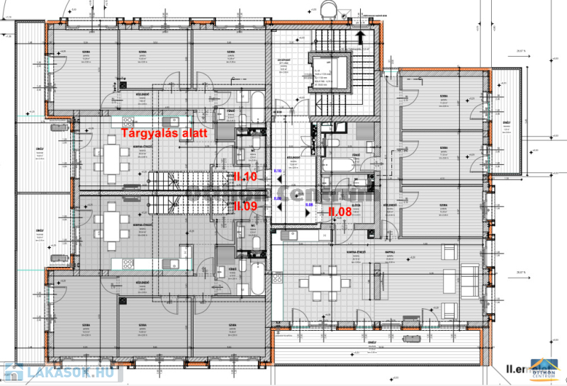
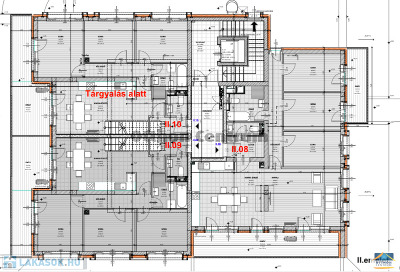
Debrecen kedvelt városrészén, központhoz közeli csendes, zöld övezetben, magas műszaki tartalommal rendelkező, jó elrendezésű, 9 lakóegységből álló, liftes társasházi lakások eladók.
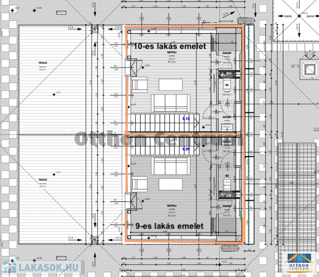
Az ingatlanok 66.59 nm- 99,72 nm alapterületűek, tágas világos terekkel rendelkeznek, jó elrendezésűek, minden lakáshoz nagy méretű terasz vagy erkély tartozik. A földszinti lakásokhoz saját kert kapcsolat, a II. emeleti lakásokhoz napelem rendszer került kiépítésre. A társasház teremgarázsában 14 db gépkocsi beálló kap helyet. Kedvező hitelkonstrukció és vásárlási feltételek.

Az ingatlan legfőbb jellemzői:
-A társasház a legújabb, legmodernebb technológiával, magas műszaki tartalommal, megbízható, minőségi kivitelezéssel készül.
-A társasházban 2 db Penthouses lakás is kialakításra kerül
-Lift
-"AA" osztályos energetikai besorolás
-a Társasház lakásainak az energetikai igénye normál használat esetén, nem éri el a rezsicsökkentett fogyasztási határértéket
-3 rétegű hőszigetelt üvegezés, UW 0,78-as értékkel rendelkező, 3 ütközéses, nyílászáró fehér színben
-belső nyílászárók prémium minőségű, modern, küszöbmentes, dekoratív 4 üvegcsíkokkal rendelkező fóliázott fehér ajtók
-elektromos redőny előkészítés
-falak Porotherm 30 N+F, +15 cm homlokzati hőszigetelő
-MABISZ minősítéssel és 30 perces tűzvédelemmel rendelkező biztonsági bejárati ajtó
-a II. emeleti lakásokhoz 2,5 kVA és a társasház közös helyiségeinek energiaszükségletéhez 5 kVA napelem rendszer került kiépítésre.
-házközponti fűtés, egyedi mérőkkel,
-padlófűtés Danfoss rendszerrel helyiségenkénti fűtésszabályzóval,
-lakásonként 2 db klíma
-I. osztályú minőségi burkolatok és szaniterek
-a lakásokban riasztó rendszer, ill. a lépcsőházi bejárattól kaputelefon hálózat kerül kiépítésre.
-teremgarázs, minőségi, nem az átlagos kivitelezési formában( a legmodernebb tűz védelem, minőségi padló, modern szellőző rendszer)
Ár.: 7 M Ft
-a teremgarázsban elektromos autótöltési lehetőség kialakítása, igény szerint ( opcionális, a parkoló ára nem tartalmazza)
-kertvárosi, értékálló környezet
-parkosított kert
-kevés lakásszám!!!
A társasházban megújuló energiatermelés is megépítésre kerül napelem formájában, melynek fő célja a közös gépészeti és világítási energiaigény kielégítése.

Ha önnek fontos, hogy jó helyen lakjon, és minőségi ingatlant vásároljon, akkor itt a lehetőség !!!
Ha felkeltettem az érdeklődését, bővebb tájékoztatással, műszaki tartalommal kapcsolatban kérem hívjon bizalommal! Hétvégén is!

Lakás részletei

Ár: 106 500 000 Ft
Méret: 100 négyzetméter
Azonosító: 11302524
Erkély mérete: 47.00 négyzetméter
Építőanyag: Tégla
Ingatlan állapota: Kitűnő
Kilátás: udvari
Egész szobák: 4

Egyéb jellemzők

  • Erkély
  • Garázs
  • Lift
  • Kertkapcsolat
  • Tároló
  • Kocsibeálló

Így keressen lakást négy egyszerű lépésben. Csupán 2 perc, kötelezettségek nélkül!

Szűkítse a lakások
listáját
Válassza ki a megfelelő
lakást
Írjon a hirdetőnek
Várjon a visszahívásra