Eladó lakás Debrecen, Belváros, 104 900 000 Ft

Leírás

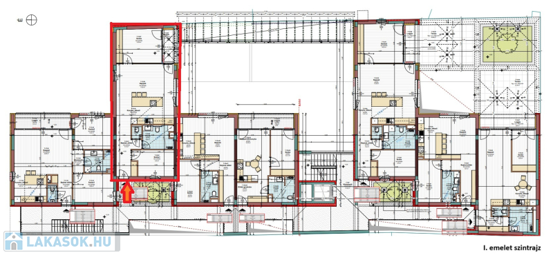
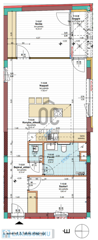
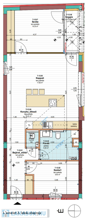
I. emelet 2. lakás br. 77 nm:

- amerikaikonyhás nappali (33 nm)
- 2 hálószoba ( 14, 9 nm)
- fürdőszoba - WC (7 nm)
- vendégmosdó
- loggia 2 kijárattal
- D-i tájolás
Projekt bemutatása

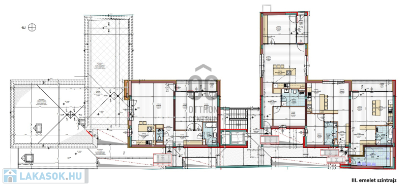
A Belváros központhoz közeli részén kerül kivitelezésre ez a JÖVŐSZERŰ, több lakásméretben gazdag, egyedi tervezésű, 16 lakásos, liftes társasház.
Tekintse meg és válasszon a még elérhető 70 nm feletti, erkélyes, nappali + 2 szobás vagy 44 nm-es nappali +1 szobás lakáskínálatból!

A 3 emeletes társasház két utcáról is megközelíthető, belső, parkosított udvaron keresztül gyalogosan, míg gépkocsival saját/privát útszakaszon közlekedhetnek.
Változatos homlokzati megoldások, jobb tájolás, izgalmas belső bevilágító udvarok, így nincs átlátás!
Függőfolyosó, lépcsők és lift segítik a lakások gyors megközelítését!
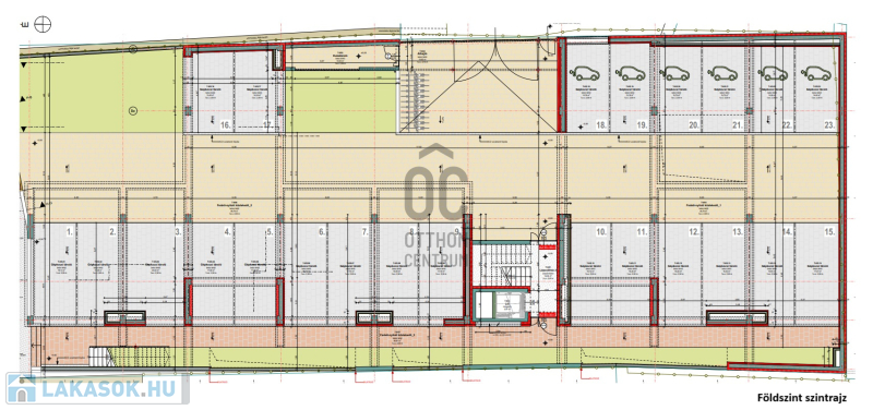
Gépkocsi beállók ( 7,2 MFt/db) a földszinti pillér lábak között lettek kialakítva és mindegyik autótöltővel felszerelt.
A lakások belső kialakításához neves belsőépítész készített terveket, melyek segítséget nyújthatnak a berendezéshez!

Műszaki adatok:
- teherhordó falak Porotherm 30 N+F
- belső térelválasztó falak 10 N+F (NEM gipszkarton)
- hőszigetelése előírásnak megfelelő Grafit Reflex
- gépészet lakásonként egyedileg tervezett
- nyílászárók 3 rtg. műanyag, hőszigetelt üvegezéssel
- beépített elektromos, távirányítós redőnyök
- lakásonként hőcserélős szellőztetés
- padlófűtés és mennyezet fűtés - hűtés, melegvíz
- házközponti Daikin hőszivattyúval (lakásonként egyedi hőmennyiség méréssel)
- laminált parketta (8.000.-Ft/nm) greslap (10.000.-Ft/nm)
- minőségi szaniterek (Grohe, Villeroy&Boch)
- épített zuhanykabin vagy kád egyedi igény esetén

Többféle fizetési lehetőség, CSOK +, egyedi hitelek, melynek kalkulációjában segíthetünk, ha igényli!

Idei kezdés, 2026. év végi átadás.

Lakás részletei

Ár: 104 900 000 Ft
Méret: 73 négyzetméter
Azonosító: 11532297
Városrész: Belváros
Építőanyag: Tégla
Ingatlan állapota: Kitűnő
Kilátás: kertre néző
Egész szobák: 3

Egyéb jellemzők

  • Erkély
  • Garázs
  • Lift
  • Kertkapcsolat
  • Tároló
  • Kocsibeálló

Így keressen lakást négy egyszerű lépésben. Csupán 2 perc, kötelezettségek nélkül!

Szűkítse a lakások
listáját
Válassza ki a megfelelő
lakást
Írjon a hirdetőnek
Várjon a visszahívásra