Eladó lakás Debrecen 99 900 000 Ft

Leírás


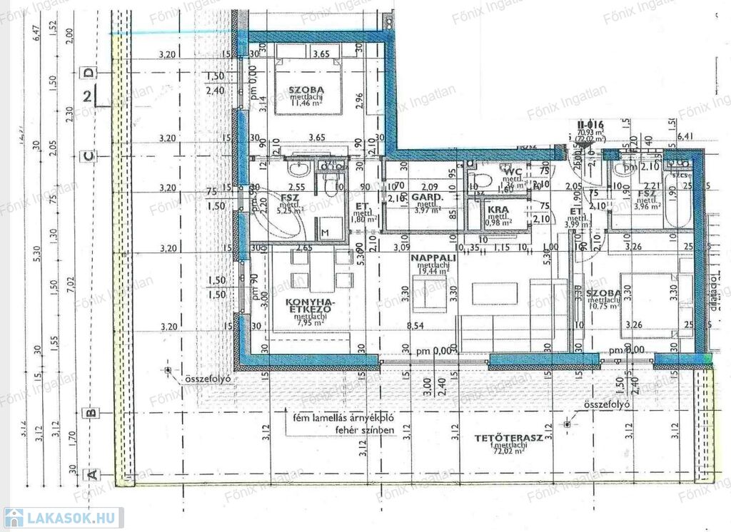
Debrecen, 2019-es, belváros közeli, 16 lakásos társasházban, 2. emeleti, Penthouse típusú, nappali -2 szobás lakás, 72 m2 terasszal, minőségi beépített bútorzattal, energia barát hőszivattyús fűtéssel, garázs vásárlási lehetőséggel eladó. 

 

Lakás:

- DK.-i tájolás, kertre néző, 

- 71 m2 alapterület, 2 háló, amerikai konyhás elrendezés, 

- dupla komfort, ( 2 fürdőszoba) 

- 72 m2 "L" alakú, a lakást körbe ölelő terasz több kijárattal,

- elektromos alumínium redőnyök,

- vízkiállás a teraszon locsoláshoz, jakuzzihoz, 

- polikarbonát esővédő körben, 

- mozgás érzékelő kapcsolók, a bútorokba épített aljzatok, töltők, falba tolható ajtók, 

- teljesen gépesített konyha borhűtővel, tipp- on ajtókkal, 

- AEG és Electrolux gépek,

- Ravak és Hansgrohe szaniterek,  

- Bosch központi hőszivattyús rendszerű padló - mennyezet fűtés- hűtés,  

- a lakás átlagban mintegy havi 20 ezer forintból üzemeltethető, amelyből kktg 14 200 forint havonta, ebben az áram nincs benne. 

 

Társasház: 

- falazat PHT 30+ 15 cm homlokzati szigetelés,

- a lakórészek között hanggátló tégla, 

- Bosch központi hőszívattyús rendszer,  

- központi napelem és napkollektor rásegítés,

- rendezett környezet és lépcsőház.

 

Garázs ( nem kötelező): 

- 2 db, 19 m2-es ( 2.7x 7.2m) elektromos  g.kapuval ellátott garázs vásárolható, 12.5 millió forint/db áron.   

Lakás részletei

Ár: 99 900 000 Ft
Méret: 71 négyzetméter
Azonosító: 11404444
Irodai azonosító: 705100100
Emelet: 2. emelet
Építőanyag: Tégla
Ingatlan állapota: Kitűnő
Komfort fokozat: Dupla komfort
Egész szobák: 3

Egyéb jellemzők

  • Lift

Így keressen lakást négy egyszerű lépésben. Csupán 2 perc, kötelezettségek nélkül!

Szűkítse a lakások
listáját
Válassza ki a megfelelő
lakást
Írjon a hirdetőnek
Várjon a visszahívásra