Eladó lakás Budapest XXIII. ker 79 900 000 Ft

Leírás

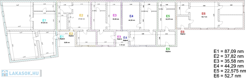
Eladó lakások Soroksár frekventált részén!

Az ingatlan teljesen felújított, új tetőt kapott, 3 rétegű műanyag nyílászárókkal, hőszivattyús klímával ellátott.
A lakásokhoz 2db saját gépkocsi beálló tartozik.

1.sz. lakás 87,09 m2
- előtér 12 m2
- szoba 24 m2
- szoba 25 m2
- konyha 12 m2
- fürdő 6,4 m2

A lakások ügyvédi megosztással kerülnek értékesítésre.

- burkolatok 7000 Ft/m2 - ig választhatóak,
- víz 1db főmérő és lakásonként külön almérők,
- villany lakásonként saját mérőórák,

A szerződés megkötéséhez 25% önerő szükséges.

Amivel segítjük az Ön ingatlanvásárlását:
- ingyenes hitelügyintézés,
- jogi háttér,
- földhivatali ügyintézés,
- energetikai tanúsítvány.

Irodánk 30 éves szakmai tapasztalattal áll ügyfelei rendelkezésére!
Várom szíves megkeresését.

Lakás részletei

Ár: 79 900 000 Ft
Méret: 87 négyzetméter
Azonosító: 11512739
Irodai azonosító: 380887
Cím: Zsellér dűlő
Emelet: Földszint
Építőanyag: Tégla
Fűtés jellege: Egyedi
Ingatlan állapota: Felújított
Komfort fokozat: Összkomfort
Építési év: 50 évesnél régebbi
Tulajdonviszony: Saját
Kilátás: udvari
Egész szobák: 3

Egyéb jellemzők

  • Erkély
  • Garázs
  • Lift
  • Pince
  • Tároló

Térkép


Így keressen lakást négy egyszerű lépésben. Csupán 2 perc, kötelezettségek nélkül!

Szűkítse a lakások
listáját
Válassza ki a megfelelő
lakást
Írjon a hirdetőnek
Várjon a visszahívásra