Eladó lakás Budapest XXIII. ker 77 575 000 Ft

Leírás

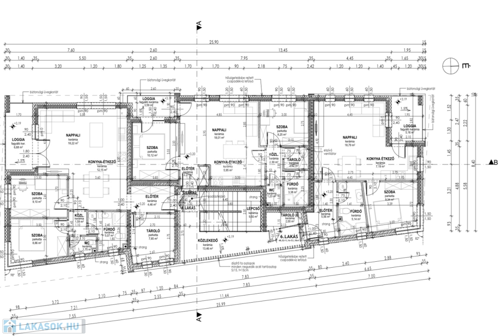
Eladó egy új építésű, összesen 6 lakásból álló társasház valamennyi lakása.

Az ingatlan Soroksár új kertvárosi lakóparkjában, csendes, családbarát környezetben található, ahol a nyugodt életvitel és a jó városi elérhetőség harmonikusan találkozik.

A város zajától távol, mégis kiváló infrastruktúrával rendelkezik: üzletek, szolgáltatások és tömegközlekedés könnyen elérhetők.

A Soroksári kiserdő és a Duna közelsége különleges, természetközeli hangulatot biztosít, amely valódi otthonérzetet nyújt a leendő tulajdonosok számára.

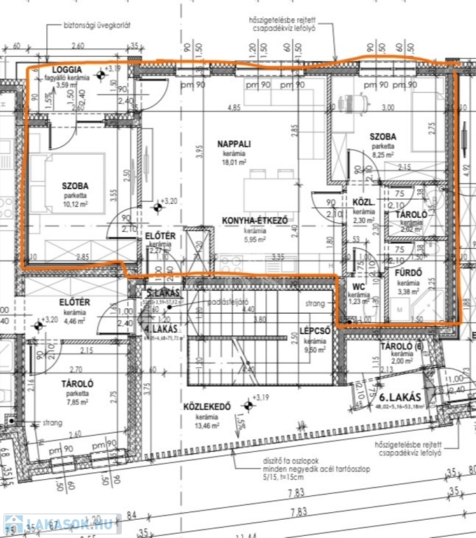
5. lakás:
- Emelet,
- 53,5 nm,
- 2 szoba,
- Amerikai konyhás nappali,
- Fürdő-Wc,
- Kamra,
- Erkély 3,7nm.
- 77.575.000 Ft

További lakások az emeleten:
4. lakás: 100.050.000 Ft
6. lakás: 69.600.000 Ft


MŰSZAKI TARTALOM

Szerkezet és szigetelés
• ProKoncept rendszerű falazat (25–35 cm vastagság)
• 15 cm vastag grafitos hőszigetelés a homlokzaton
• Lábazati és koszorú előtti hőszigetelés
• Talajnedvesség elleni bitumenes szigetelés
• Kiemelkedő hő- és hangszigetelési tulajdonságok

Tető
• Égetett agyag cserépfedés
• Alacsony hajlásszögű tetőrészeken korcolt fémlemez fedés
• Tartós, időjárásálló szerkezeti kialakítás

Nyílászárók
• Műanyag nyílászárók, 3 rétegű hőszigetelő üvegezéssel
• Jó hő- és hangszigetelési értékek
• Teraszajtók szintén 3 rétegű üvegezéssel

Fűtés – gépészet
• Levegő–víz hőszivattyús fűtési rendszer
• Felületfűtés (padlófűtés)
• Elektromos bojleres melegvíz-ellátás

Energia & jövőállóság
• Energiatakarékos, korszerű műszaki megoldások
• Napelem későbbi kiépítésének lehetősége
• Elektromos autó töltés előkészítése

Burkolatok, belső kialakítás
• Gipszkarton álmennyezet
• Burkolatok magas minőségben, választható kivitelben

Parkolás, környezet
• Telken belüli parkolás
• Minden lakáshoz saját autóbeálló
• Földszinti lakásokhoz saját kis kert
• Aszfaltozott utca, kiépített közművek

Az elkészült lakások lakhatási engedéllyel kerülnek átadásra!!!
Tervezett átadás: 2026. év vége!

Ütemezés: 20% foglaló, a fennmaradó összeg megbeszélés alapján.

Az ingatlan 3%-os Otthon Start hitellel is megvásárolható.


Irodánk 30 éves szakmai tapasztalattal áll ügyfelei rendelkezésére!
Bankfüggetlen hitelcentrummal, jogi hátérrel segítjük ingatlanvásárlását!
Várom szíves megkeresését, hívjon bizalommal!

Lakás részletei

Ár: 77 575 000 Ft
Méret: 53 négyzetméter
Azonosító: 11601017
Irodai azonosító: 392884
Cím: Kertvárosi körút
Emelet: 1. emelet
Építőanyag: Tégla
Fűtés jellege: Hőszivattyú
Ingatlan állapota: Kitűnő
Komfort fokozat: Összkomfort
Építési év: Új építésű
Tulajdonviszony: Saját
Kilátás: udvari
Egész szobák: 3

Egyéb jellemzők

  • Erkély
  • Garázs
  • Lift
  • Pince
  • Tároló

Térkép


Így keressen lakást négy egyszerű lépésben. Csupán 2 perc, kötelezettségek nélkül!

Szűkítse a lakások
listáját
Válassza ki a megfelelő
lakást
Írjon a hirdetőnek
Várjon a visszahívásra