Eladó lakás Budapest XXIII. ker 53 000 000 Ft

Leírás

Soroksár frekventált részén eladó lakások!

Az ingatlan teljesen felújított, új tetőt kapott, 3 rétegű műanyag nyílászárókkal, hűtő-fűtő klímával ellátott.
A lakásokhoz 2db saját gépkocsi beálló tartozik.

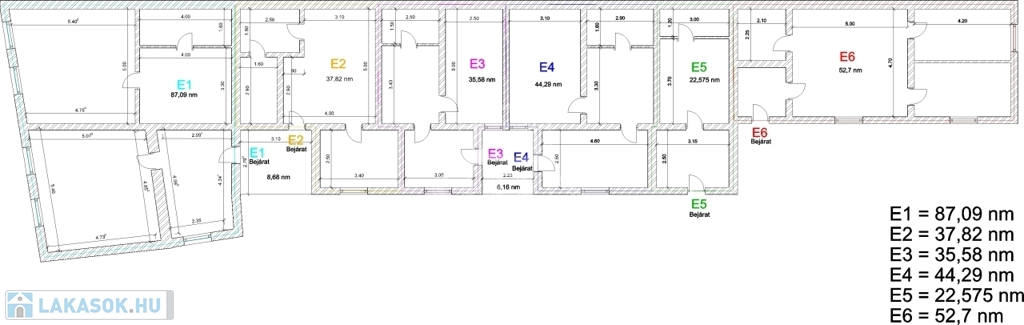
6.sz. lakás 52,7 m2
- előtér 4,72 m2
- konyha-nappali 23,5 m2
- szoba 9,7 m2
- szoba 9,7 m2
- fürdő 4,72 m2

A lakások ügyvédi megosztással kerülnek értékesítésre.

- víz 1db főmérő és lakásonként külön mellékmérők,
- villany lakásonként saját mérőórák,

Befektetésnek is kiváló, a környéken 170.000-210.000Ft/hó + rezsi áron vannak hasonló kiadó lakások, ami évente 2.000.000Ft bevételt jelenthet.

Amivel segítjük az Ön ingatlanvásárlását:
- ingyenes hitelügyintézés,
- jogi háttér,
- földhivatali ügyintézés,
- energetikai tanúsítvány.

Irodánk 30 éves szakmai tapasztalattal áll ügyfelei rendelkezésére!
Várom szíves megkeresését.

Lakás részletei

Ár: 53 000 000 Ft
Méret: 53 négyzetméter
Azonosító: 11562303
Irodai azonosító: 386816
Cím: Zsellér dűlő
Emelet: Földszint
Építőanyag: Tégla
Fűtés jellege: Egyedi
Ingatlan állapota: Kitűnő
Komfort fokozat: Összkomfort
Építési év: Újszerű
Tulajdonviszony: Saját
Kilátás: udvari
Egész szobák: 3

Egyéb jellemzők

  • Erkély
  • Garázs
  • Lift
  • Pince
  • Tároló

Térkép


Így keressen lakást négy egyszerű lépésben. Csupán 2 perc, kötelezettségek nélkül!

Szűkítse a lakások
listáját
Válassza ki a megfelelő
lakást
Írjon a hirdetőnek
Várjon a visszahívásra