Eladó lakás Budapest XXIII. ker 36 000 000 Ft

Leírás

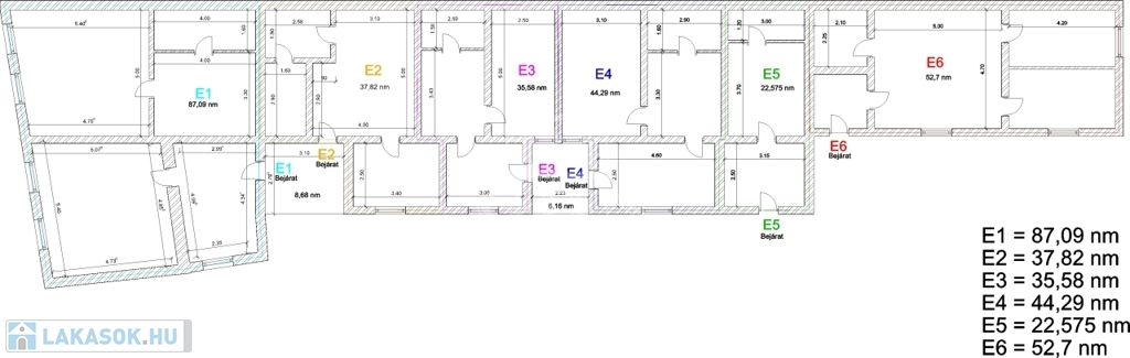
Eladó Soroksáron egy 35 m2-es lakás, 6 lakásos házban.

Az ingatlan teljesen felújított, új tetőt kapott, 3 rétegű műanyag nyílászárókkal, hőszivattyús hűtő-fűtő klímával ellátott.
A lakáshoz saját gépkocsi beálló tartozik.

3.sz. lakás 35,2 m2 (E3)
- előtér 7,5 m2
- konyha 8,5 m2
- szoba 12,5 m2
- fürdő 3,7 m2

A lakások ügyvédi megosztási szerződéssel kerülnek értékesítésre.

- víz 1db főmérő és lakásonként külön mellékmérők
- villany lakásonként saját mérőórák

Befektetésnek is kiváló, a környéken 170.000-210.000Ft/hó + rezsi áron vannak hasonló kiadó lakások, ami évente 2.000.000Ft bevételt jelenthet.

Amivel segítjük az Ön ingatlanvásárlását:
- ingyenes hitelügyintézés,
- jogi háttér,
- földhivatali ügyintézés,
- energetikai tanúsítvány.

Irodánk 30 éves szakmai tapasztalattal áll ügyfelei rendelkezésére!
Várom szíves megkeresését!

Lakás részletei

Ár: 36 000 000 Ft
Méret: 35 négyzetméter
Azonosító: 11605163
Irodai azonosító: 393338
Cím: Zsellér dűlő
Emelet: Földszint
Építőanyag: Tégla
Fűtés jellege: Egyedi
Ingatlan állapota: Felújított
Komfort fokozat: Összkomfort
Építési év: 50 évesnél régebbi
Tulajdonviszony: Saját
Kilátás: udvari
Egész szobák: 2

Egyéb jellemzők

  • Erkély
  • Garázs
  • Lift
  • Pince
  • Tároló

Térkép


Így keressen lakást négy egyszerű lépésben. Csupán 2 perc, kötelezettségek nélkül!

Szűkítse a lakások
listáját
Válassza ki a megfelelő
lakást
Írjon a hirdetőnek
Várjon a visszahívásra