Eladó lakás Budapest XXII. ker 57 500 000 Ft

Leírás


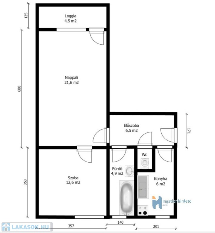
Elhelyezkedése: Társasház Emeleti elhelyezkedés: Emeleten Emelet száma: 2 Épület emeleteinek száma: 3 Tájolása: Dél-keleti tájolású Állapota: Használt - felújítandó Komfort besorolása: összkomfortos Építési éve: 1950 Alapterülete: 55 m2 Szobák száma: 2szoba Közművek: Gáz, Víz, Villany, Csatorna Fűtés típusa: Cirkó Homlokzat állapot: átlagos Építési mód: Tégla Parkolási lehetőség: Utcán Kilátás: Parkra nyíló kilátás Jellemzői: Alacsony rezsi, Csendes környék, Jó közlekedés Energetikai besorolás: Nincs adat Egyéb jellemzők: Erkély Eladásra vonatkozó információk: Azonnal beköltözhető
22. kerületben, Nagytétényben a Bartók Béla úton eladó egy 2.emeleti, felújítandó állapotú, 55 m2, 2 szobás, loggiás (4,5 m2), csendes, zöld parkra néző lakás.

A tégla építésű társasház 3 emeletes a lépcsőház 10 lakásos, mely karban- és tisztán tartott. Lift nincs.

Az épület körül gondozott közös park biztosítja a lakók kikapcsolódását és nyugalmát.

A lakás további jellemzői:
- azonnal birtokba vehető
- DK-i és ÉNY-i fekvésű
- ablakos konyha
- ablakos fürdőszoba káddal
- külön wc
- minden egyedileg mérhető

Közös költség: 12.000 Ft/hó

A lakáshoz tartozik a pince szinten egy közös 4 m2-es tároló (három lakás)

Fűtés: MIKA kazán (télen 10.000 Ft/hó)

Közlekedés: vonatok (Kastélypark és Barosstelep megállók) buszok (13, 13A, 33, 88, 113, 133E) éjszakai járat (973) pár percen belül elérhetőek.

Közelben: bevásárlási lehetőségek, óvoda, iskola, bankok, posta, gyógyszertár stb.

További információért kérem, hívjon bizalommal, majd nézze meg személyesen, és tegyen egy ajánlatot!

Lakás részletei

Ár: 57 500 000 Ft
Méret: 55 négyzetméter
Azonosító: 11572405
Cím: Bartók Béla
Emelet: 2. emelet
Építőanyag: Tégla
Fűtés jellege: Cirkó
Ingatlan állapota: Felújítandó
Komfort fokozat: Összkomfort
Építési év: 1-5 éves
Elhelyezkedés: Társasház
Kilátás: panorámás
Egész szobák: 2

Egyéb jellemzők

  • Erkély

Térkép


Így keressen lakást négy egyszerű lépésben. Csupán 2 perc, kötelezettségek nélkül!

Szűkítse a lakások
listáját
Válassza ki a megfelelő
lakást
Írjon a hirdetőnek
Várjon a visszahívásra