Eladó lakás Budapest XX. ker 109 900 000 Ft

Leírás

Klasszikus stílusú, elegáns családi fészek Pesterzsébet szívében

Ha nagyobb térre vágyna, de maradna nyugodt, mégis jól megközelíthető környéken, ezt a lakást imádni fogja!
Eladó egy 142 nm-es, belső kétszintes, 3 szobás, 2 félszobás otthon Budapest XX. kerületében, családbarát környezetben.

Amit tudni érdemes:
✅ Jó állapot, egy új konyha beszerelése után azonnal költözhető
✅ Teljes tetőcsere már megtörtént
✅ Új villany- és gázvezetékek
✅ Szintenként külön biztosítéktábla
✅ Vadonatúj gázcirkó fűtés radiátorokkal
✅ 3 fürdőszoba – nincs több reggeli sorban állás!
✅ Udvari beálló + utcán ingyenes parkolás

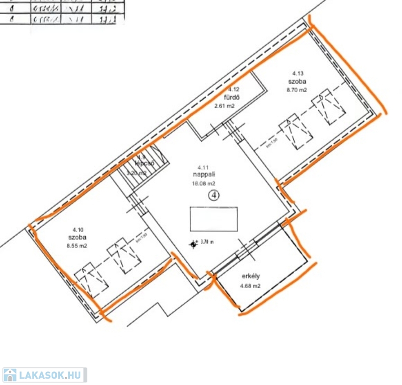
Az alsó szinten tágas előtér gardróbbal, konyhakiállásokkal kamrával, valamint két fürdőszoba található.
A felső szint központja a világos nappali, ahonnan nyílik az erkély (4 nm) . Innen két külön nyíló szoba érhető el, valamint itt kapott helyet a harmadik fürdő is.
A lakás világos, száraz falakkal, jól szigetelő fa nyílászárókkal, fa lépcsőkorláttal. Riasztórendszer kiépítve (újraaktiválható).

Lenyűgöző hangulatú beltér,kis ráfordítással egy igazi nagyvonalú polgári otthon válhat belőle!

A környék:
Csendes, barátságos, minden a közelben – iskola, ovi, boltok, tömegközlekedés pár perc sétára.
Ideális nagycsaládosoknak vagy akár kétgenerációs együttélésre is, vagy befektetők számára egyránt.
Elsősorban készpénzes vevőket várunk!

Lakás részletei

Ár: 109 900 000 Ft
Méret: 142 négyzetméter
Azonosító: 11601358
Irodai azonosító: 392798
Cím: Klasszikus hangulat Erzsébetfalván
Emelet: 1. emelet
Építőanyag: Tégla
Fűtés jellege: Cirkó
Ingatlan állapota:
Komfort fokozat: Összkomfort
Építési év: 50 évesnél régebbi
Tulajdonviszony: Saját
Kilátás: udvari
Egész szobák: 2
Fél szobák: 2

Egyéb jellemzők

  • Erkély
  • Garázs
  • Lift
  • Pince
  • Tároló

Térkép


Így keressen lakást négy egyszerű lépésben. Csupán 2 perc, kötelezettségek nélkül!

Szűkítse a lakások
listáját
Válassza ki a megfelelő
lakást
Írjon a hirdetőnek
Várjon a visszahívásra