Eladó lakás Budapest XX. ker 102 500 000 Ft

Leírás

Eladó luxuslakás Pesterzsébet Mediterrán lakóparkjában!

Pesterzsébet kedvelt Mediterrán Lakóparkjában kínáljuk megvételre ezt a 2017-ben épült, igazi luxusérzetet nyújtó, modern lakást. A földszinti elhelyezkedésű ingatlan egyedi kialakításának köszönhetően 5 méter magasan helyezkedik el az utcától, így teljes privát szférát biztosít.

Főbb jellemzők:
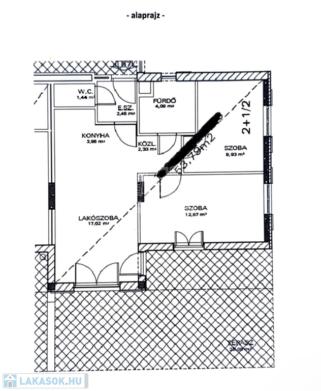
• Alapterület: 53,7nm
• Szobák száma: 3
• Terasz: 81 nm extra nagy, örök panorámás terasz
• Fekvés: Délnyugati tájolás, napfényes elhelyezkedés
• Fűtés: Korszerű geotermikus hűtés-fűtési rendszer
• Kialakítás: Modern bútorokkal berendezett, igényesen kialakított belső tér
• Extrák: Automata árnyékolók

Környék adottságai:
• 300 méterre található a híres jódos gyógyfürdő
• 100 méterre a Duna-part, teniszpálya, sportközpontok
• Kiváló infrastruktúra: boltok, óvoda, iskola, éttermek, Duna-parti sétány a közelben

Ez a lakás tökéletes választás mindazoknak, akik nyugodt, mégis központi elhelyezkedésű, exkluzív otthont keresnek!

Irodánk teljes körű banki hitellehetőségekkel, pénzügyi konstrukciókkal, állami támogatásokkal díjmentesen áll az érdeklődők rendelkezésére.

Amennyiben további tájékoztatásra van szüksége, vagy szeretné megtekinteni az ingatlant kérem, hívjon a hét bármely napján.

A hirdetésben szereplő adatok tájékoztató jellegűek, nem minősülnek ajánlattételnek.

Lakás részletei

Ár: 102 500 000 Ft
Méret: 54 négyzetméter
Azonosító: 11469046
Irodai azonosító: 377519
Cím: Duna-parti, saját kerttel!
Emelet: Magasföldszint
Építőanyag: Tégla
Fűtés jellege: Egyedi
Ingatlan állapota: Kitűnő
Komfort fokozat: Összkomfort
Építési év: 6-10 éves
Tulajdonviszony: Saját
Kilátás: kertre néző
Egész szobák: 3

Egyéb jellemzők

  • Erkély
  • Garázs
  • Lift
  • Pince
  • Tároló

Térkép


Így keressen lakást négy egyszerű lépésben. Csupán 2 perc, kötelezettségek nélkül!

Szűkítse a lakások
listáját
Válassza ki a megfelelő
lakást
Írjon a hirdetőnek
Várjon a visszahívásra