Eladó lakás Budapest XVIII. ker 93 900 000 Ft

Leírás

Új építésű, prémium társasházi lakások Budapest XVIII. kerületében – Bókaytelepen!
Budapest XVIII. kerületének egyik legkedveltebb, kertvárosias részén, Bókaytelepen épül ez a mindössze 10 lakásos, exkluzív társasház, kiváló infrastruktúrával, mégis nyugodt, zöldövezeti környezetben.
Az ingatlan ideális választás mindazoknak, akik modern, energiatakarékos otthont keresnek, vagy értékálló befektetésben gondolkodnak.
Tervezett átadás: 2026. II.-III. negyedév
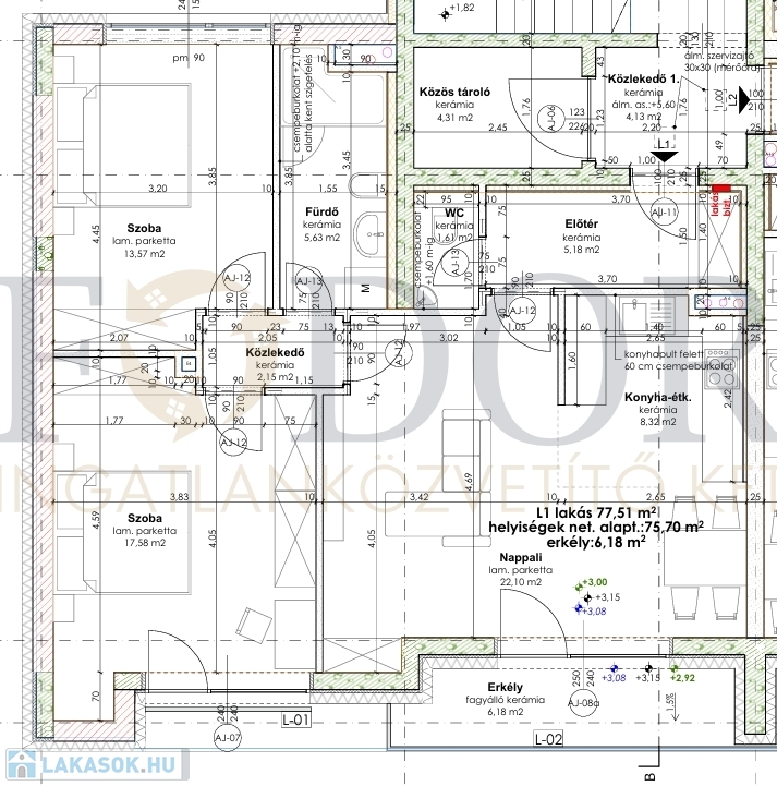
Az első emeleti lakás 75 négyzetméter hasznos alapterülettel 6 négyzetméteres erkéllyel, amerikai konyhás nappali + 2 hálószobával rendelkezik, 93,9 millió forint.

A társasház főbb jellemzői
• földszint + 3 emelet kialakítás
• lift a kényelmes közlekedésért
• az 1. és 2. emeleten 4–4 lakás
• a tetőtérben 2 db penthouse lakás, hatalmas teraszokkal
• közös használatú, rendezett udvar
• közös kerékpártároló
A projekt kis lakásszáma garantálja a családias, nyugodt lakóközösséget.

Prémium szerkezet – kiváló hő- és hangszigetelés
A társasház korszerű, minőségi építési technológiával készül:
• 30 cm-es téglafalazatból épül
• belső válaszfalak Ytong téglából
• a szomszédos lakások között hanggátló falazat biztosítja a nyugalmat
• 20 cm-es homlokzati hőszigetelés, amely jelentősen csökkenti a fenntartási költségeket

Műszaki tartalom – korszerű, energiatakarékos rendszer (A+ minősítéssel)
A társasház tervezésénél kiemelt szempont volt a modern gépészet, a fenntarthatóság és az alacsony rezsi.
Az épület A+ energetikai besorolással rendelkezik, amely hosszú távon is kedvező fenntartást biztosít.
A lakások központi fűtési rendszerrel készülnek, amelyet korszerű gépészet szolgál ki:
• 2 db hőszivattyú
• 2 db 1000 literes puffer tartály
• kiegészítő gázkazán rásegítés a melegvíz előállításhoz
• minden lakásban komfortos padlófűtés

Fan-coil hűtés előkészítés minden helyiségben
A lakásokban fan-coil hűtés kerül kialakításra, így a nyári klimatizálás is könnyedén megoldható modern, esztétikus módon.

Egyedi mérhetőség, szabályozható komfort
A fűtés és hűtés fogyasztása lakásonként külön mérhető:
• a rendszer fogyasztását hőmennyiségmérő rögzíti
• a vízfogyasztáshoz 1 db vízóra kerül felszerelésre, amely összeköttetésben áll a hőmennyiségmérővel
A lakások hőmérséklete kényelmesen szabályozható:
• a nappaliban és a hálószobákban külön-külön állítható
• zónánként kezelhető rendszer a maximális komfort érdekében

Kulcsrakész átadás – választható belső kialakítással
A meghirdetett árak kulcsrakész állapotra vonatkoznak, mely tartalmazza:
• választható hideg- és melegburkolatokat
• beltéri ajtókat
• modern szanitereket
Így az új tulajdonos saját ízlésére formálhatja otthonát már a kivitelezés során.

Parkolás és tárolók (kötelezően megvásárolandó)
A lakásokhoz az alábbi opciók közül választható parkolóhely tartozik:
• Garázs: 5,5 M Ft
• Fedett beálló: 4,5 M Ft
• Udvari beálló: 3 M Ft
Tároló vásárlása kötelező: 1,7 M Ft

Elérhető lakások – már csak 5 db!

1. emeleti lakások
Lakás 1.
• 75 m² + 6 m² erkély
• 2 hálószoba + amerikai konyhás nappali
• fürdőszoba + külön WC
Ár: 93,9 M Ft
Lakás 2.
• 66 m² + 6 m² erkély
• 2 hálószoba + amerikai konyhás nappali
• fürdőszoba + külön WC
Ár: 86,9 M Ft

2. emeleti lakás
Lakás 6.
• 66 m² + 6 m² erkély
• 2 hálószoba + amerikai konyhás nappali
• fürdőszoba + külön WC
Ár: 86,9 M Ft

Penthouse lakások a tetőtérben
Penthouse 1.
• 60 m² + 48 m² panorámás terasz
• 1 hálószoba + amerikai konyhás nappali
• fürdőszoba + külön WC
Ár: 86,9 M Ft
Penthouse 2.
• 63 m² + 41 m² hatalmas terasz
• 2 hálószoba + amerikai konyhás nappali
• fürdőszoba + külön WC
Ár: 89,9 M Ft

A lakások száma korlátozott, a projekt kiemelkedő elhelyezkedése és műszaki színvonala miatt gyors értékesítés várható.

Keressen bizalommal további információért, alaprajzokért és személyes egyeztetésért!
A leírás és az alaprajz kizárólag tájékoztató jellegű.

IRODÁNK INGYENES HITELÜGYINTÉZÉSSEL, TANÁCSADÁSSAL, SZÁMOS BANK AJÁNLATÁVAL ÉS ÚJ CSOK PLUSZ FOLYÓSÍTÁSÁVAL VÁRJA ÜGYFELEIT.

Ez a modern, energiatakarékos és prémium kivitelezésű otthon rövid időn belül birtokba vehető. Ne hagyja ki ezt a lehetőséget, hogy álmai otthonába költözhessen!

Lakás részletei

Ár: 93 900 000 Ft
Méret: 79 négyzetméter
Azonosító: 11605839
Irodai azonosító: 349789
Emelet: 1. emelet
Építőanyag: Tégla
Ingatlan állapota: Kitűnő
Komfort fokozat: Összkomfort
Építési év: Új építésű
Egész szobák: 3

Egyéb jellemzők

  • Erkély
  • Garázs
  • Lift
  • Kertkapcsolat

Így keressen lakást négy egyszerű lépésben. Csupán 2 perc, kötelezettségek nélkül!

Szűkítse a lakások
listáját
Válassza ki a megfelelő
lakást
Írjon a hirdetőnek
Várjon a visszahívásra