Eladó lakás Budapest XVIII. ker 83 900 000 Ft

Leírás

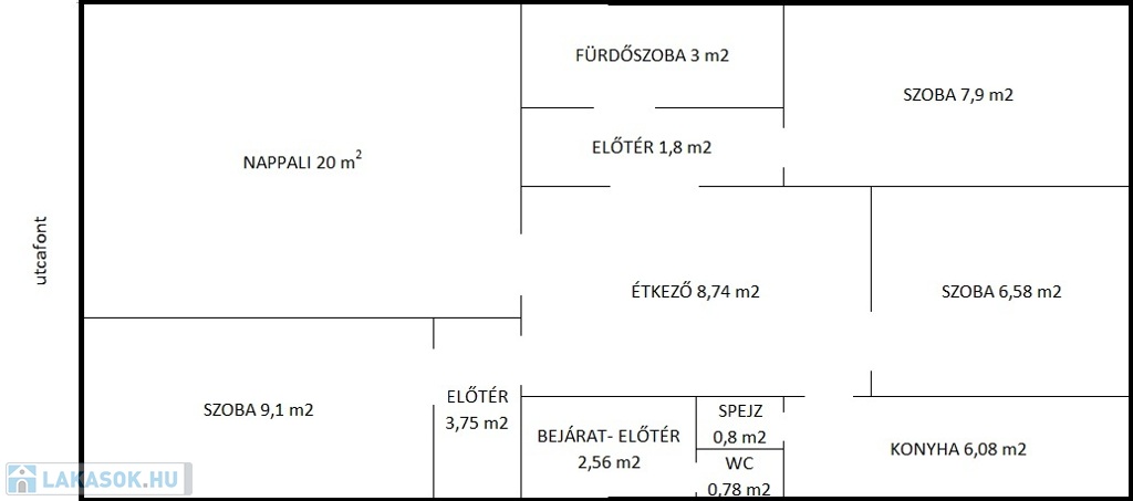
Eladó tágas, alakítható földszinti lakás az Alacskai lakótelepen!

Az Alacskai lakótelepen megvételre kínálunk tulajdonostó egy tehermentes 72 m²-es, összkomfortos, 1+ 3 fél szobás, étkezős földszinti lakást, rendezett társasházban, kiváló elosztással és rengeteg átalakítási lehetőséggel.

A lakás két irányba tájolt:
• a nappali és az egyik szoba a parkoló felé néz,
• míg a konyha és két szoba a csendes, zöld hátsó kertre tekint.

Főbb jellemzők:
• nappali parkettával, a további 3 szoba szőnyegpadlóval van burkolva
• a fürdőszoba és WC külön helyiségben található
• konyhához tartozik egy kicsi spejz is
• a lakáshoz tartozik még a pincében kizárólagos használattal egy tároló.
• tiszta, rendezett lépcsőház, jó lakóközösség
• fűtés: a társasház saját gázkazánjával

Kiemelt előny – könnyen alakítható terek:
• a nappali melletti szoba és az előtér egyszerűen egybenyitható, így nagyobb, kényelmesebb szobatér alakítható ki
• a konyha, étkező és az egyik szoba összenyitható, így akár egy modern amerikai konyhás nappali–étkező is kialakítható

Környék és közlekedés:
• óvoda, bölcsőde, Spar, buszmegállók pár perc sétára
• néhány megállóra: orvosi szakrendelők, posta, iskolák
• a társasház saját elkerített, gondozott pihenőkerttel rendelkezik

kiváló tömegközlekedés:
o Kőbánya-Kispest metró kb. 30 perc
o 50-es villamos, Ferihegy 1., vasút kb. 15 perc
o Népliget / Boráros tér kb. 30 perc

Fontos plusz: a lakás nem légifolyosó alatt található, így a reptér közelsége ellenére nem jellemző a zajterhelés.

Irányár: 86 millió forint
Érdeklődni: +36 20 779 5426-os telefonszámon

Ha egy jól alakítható, tágas, zöld környezetű otthont keres kiváló infrastruktúrával, ez a lakás remek választás!
Keressen bizalommal további információért és megtekintésért!

Lakás részletei

Ár: 83 900 000 Ft
Méret: 72 négyzetméter
Azonosító: 11596539
Cím: Juharos sor
Emelet: Földszint
Építőanyag: Panel
Fűtés jellege: Házközponti
Ingatlan állapota:
Komfort fokozat: Összkomfort
Elhelyezkedés: Társasház
Tulajdonviszony: Saját
Bútorozott: Részben bútorozott
Kilátás: kertre néző
Kert: Közös telek
Egész szobák: 1
Fél szobák: 3
Nappalik: 1

Egyéb jellemzők

  • Garázs
  • Pince
  • Tároló

Így keressen lakást négy egyszerű lépésben. Csupán 2 perc, kötelezettségek nélkül!

Szűkítse a lakások
listáját
Válassza ki a megfelelő
lakást
Írjon a hirdetőnek
Várjon a visszahívásra