Eladó lakás Budapest XVIII. ker 79 990 000 Ft

Leírás

Új építésű, energiatakarékos földszinti lakás eladó a Bókaytelep zöldövezeti részén.

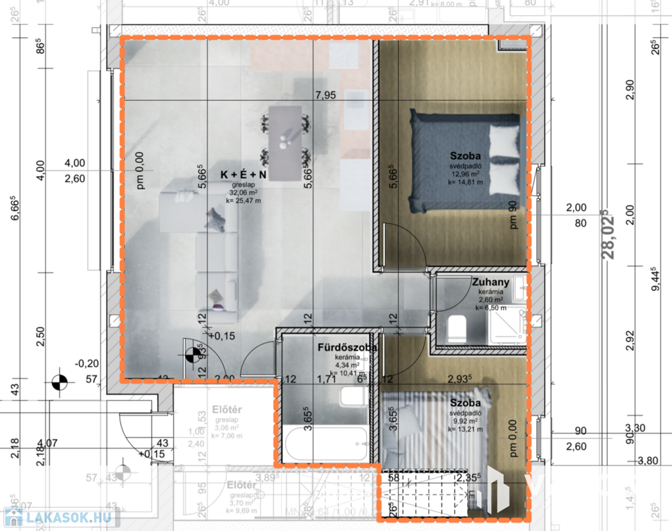
Bókaytelepen kínálunk eladásra egy 66,28 m2-es , új építésű ,modern földszinti lakást egy mindössze négy lakásos társasházban.
Az épület 2026. Il. negyedévben kerül átadásra, így a burkolatok szaniterek és belső ajtók még teljes mértékben személyre szabhatók.
Legyen szó fiatal párról, akik most kezdik közös életüket, vagy idősebb házaspárról, akik kényelmes , földszinti otthont keresnek-ez a lakás tökéletes harmóniát kínál.
A jól átgondolt alaprajz, a világos amerikai konyhás nappali, a két külön nyíló hálószoba, valamint a két fürdő( tusoló vagy kád igény szerint választható és a gardrób minden élethelyzetben kényelmet biztosít.
Az energiatakarékos kialakításnak köszönhetően pedig azok számára is ideális akik értékálló befektetést keresnek hosszú távra alacsony fenntartási költséggel.

Műszaki tartalom és felszereltség:
- Monolit vasbeton lemezalap, vízzáró rendszerrel
- Falazat hő és hangszigetelt 30 cm Leier külső falazat, Silka hanggátló elválasztó fallal
- Homlokzati hőszigetelés: 12 cm dryvit rendszer
- Földrengésbiztos födémrendszer: 25 cm vastag monolit vasbeton födém
- Tetőtér szigetelése 40 cm üveggyapot a födémen
- Tetőszerkezet: Bramac betoncserép fedéssel
- Nyílászárók: 3 rétegű üvegezésű, kívül szürke-belül fehér színű műanyag ablakok
- Bejárati ajtó : MABISZ minősítésű biztonsági ajtó
- Fűtér-hűtés: korszerű monoblokkos hőszivattyús rendszer, padlófűtéssel és fal-coil egységekkel
- Árnyékolástechnikai előkészítés: vakolható redőnyszekrények, redőny, szúnyogháló igény szerint beépíthető
- Fűtés és melegvíz ellátás: Levegő-víz hőszivattyú + központi tároló, cirkulációs rendszerrel
- Energetikai besorolás :A+
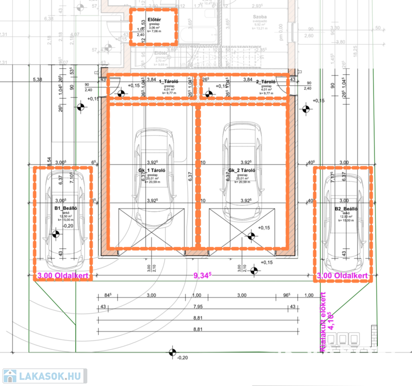
- A lakásokhoz garázs vásárolható 5,5 Mft, vagy gépkocsi beálló 1,5 Mft.
- Közös használatú parkosított kert 200 m2
Várható átadás: 2026. I. negyedév.

A társasház csendes mellékutcában épül, mégis kiváló közlekedési és infrastrukturális adottságokkal.
A közelben iskolák, óvodák, bölcsődék, orvosi rendelő, gyógyszertár, boltok, piac, éttermek.
A Bókay-kert , uszoda kellemes kikapcsolódási lehetőségek.
Tömegközlekedés : 50-es villamos, buszok, vasút, repülőtér és az M5-M0-ás autópálya néhány perc alatt elérhető.
(További képekért és információkért kérem hívjon!)

Lakás részletei

Ár: 79 990 000 Ft
Méret: 66 négyzetméter
Azonosító: 11572456
Irodai azonosító: 077103
Építőanyag: Tégla
Fűtés jellege: Hőszivattyú
Ingatlan állapota: Kitűnő
Komfort fokozat: Összkomfort
Egész szobák: 3
Nappalik: 1

Egyéb jellemzők

  • Erkély
  • Garázs
  • Klíma
  • Lift
  • Pince
  • Kertkapcsolat

Így keressen lakást négy egyszerű lépésben. Csupán 2 perc, kötelezettségek nélkül!

Szűkítse a lakások
listáját
Válassza ki a megfelelő
lakást
Írjon a hirdetőnek
Várjon a visszahívásra