Eladó lakás Budapest XV. ker 77 250 000 Ft

Leírás

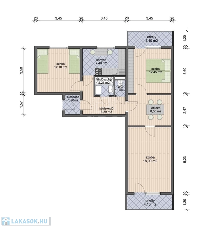
Újpalota egyik legkedveltebb részén, a Páskomliget utcában eladó egy 2. emeleti, 70 m²-es, 3 szobás, jó állapotú panellakás, két erkéllyel.

Az ingatlan praktikus elrendezésű: tágas, klimatizált nappali, két külön nyíló hálószoba, konyha, hall, fürdőszoba, valamint külön WC található benne.
A nappali az egyik erkéllyel az utcafrontra néz, míg a hálószobák és a konyha csendes, zöld parkra tekintenek, egyikükhöz saját erkély is tartozik.

A szobák és a hall laminált parkettával, a többi helyiség járólappal burkolt. A közlekedőben végig beépített gardróbszekrény biztosít elegendő tárolóhelyet.
A rendezett lépcsőház és kulturált lakóközösség tovább növelik az ingatlan vonzerejét.

A környék kiváló infrastruktúrával rendelkezik: iskola, óvoda, piac, üzletek, valamint több buszjárat is néhány perc sétával elérhető.
A lakás fenntartása kedvező – a közös költség mindössze 20.000 Ft, a rezsi kb. 25.000 Ft havonta.

Ideális választás családoknak vagy befektetőknek egyaránt.

Lakás részletei

Ár: 77 250 000 Ft
Méret: 70 négyzetméter
Azonosító: 11579645
Irodai azonosító: 389644
Cím: Páskomliget utca
Emelet: 2. emelet
Építőanyag: Tégla
Fűtés jellege: Távfűtés
Ingatlan állapota:
Komfort fokozat: Összkomfort
Építési év: 50 évesnél régebbi
Tulajdonviszony: Saját
Kilátás: panorámás
Egész szobák: 3

Egyéb jellemzők

  • Erkély
  • Garázs
  • Lift
  • Pince
  • Tároló

Térkép


Így keressen lakást négy egyszerű lépésben. Csupán 2 perc, kötelezettségek nélkül!

Szűkítse a lakások
listáját
Válassza ki a megfelelő
lakást
Írjon a hirdetőnek
Várjon a visszahívásra