Eladó lakás Budapest XV. ker 75 000 000 Ft

Leírás

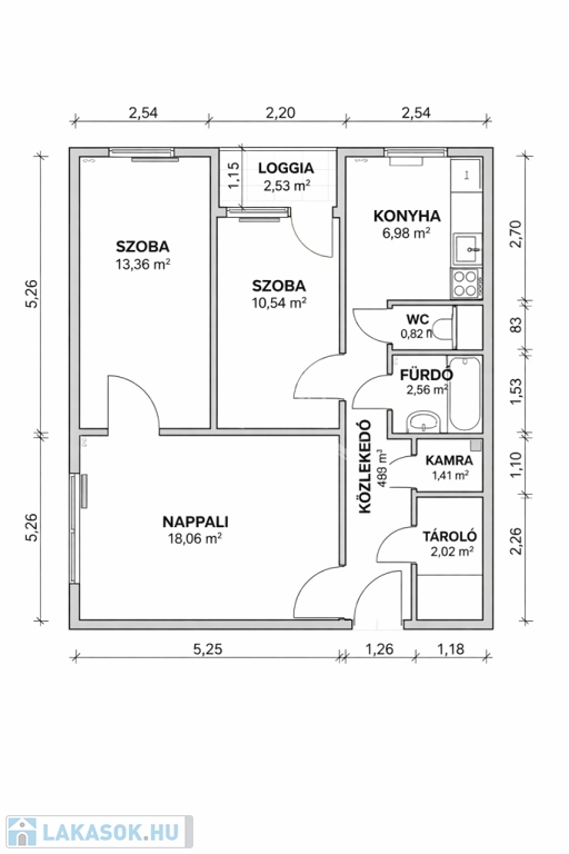
XV. kerület központjában, tömegközlekedési eszközöktől, üzletektől, számos szolgáltatástól karnyújtásnyira, kifizetett panelprogramos, folyamatosan korszerüsített társasházban kínálok eladásra, egy 64 m2-es, egyedileg átalakított, teljeskörűen felújított (műszakilag-esztétikailag) panorámás, ablakos konyhás, 2+1 fél szobás, erkélyes, alacsony fenntartású, egyedileg mérhető fűtésű, klimatizált panellakást.

Az ingatlan pár évvel ezelőtti felújítása maradéktalan volt, aminek keretében az összes nyílászáró, bejárati, beltéri ajtók, radiátorok, víz, villanyvezetékek ( falon belül), hideg, melegburkolatok, szerelvények, szaniterek cserélve lettek.

A per és tehermentes ingatlan megtekinthető a hét bármely napján és rövid időn belül birtokba is vehető!

Várom a hívását, akár hétvégén is!

B.Cs.

Lakás részletei

Ár: 75 000 000 Ft
Méret: 64 négyzetméter
Azonosító: 11601135
Irodai azonosító: 392889
Cím: Nyírpalota út
Emelet: 8. emelet
Építőanyag: Panel
Fűtés jellege: Távfűtés
Ingatlan állapota: Felújított
Komfort fokozat: Összkomfort
Építési év: 21-50 éves
Tulajdonviszony: Saját
Kilátás: panorámás
Egész szobák: 2
Fél szobák: 1

Egyéb jellemzők

  • Erkély
  • Garázs
  • Lift
  • Pince
  • Tároló

Térkép


Így keressen lakást négy egyszerű lépésben. Csupán 2 perc, kötelezettségek nélkül!

Szűkítse a lakások
listáját
Válassza ki a megfelelő
lakást
Írjon a hirdetőnek
Várjon a visszahívásra