Eladó lakás Budapest XIX. ker 76 990 000 Ft

Leírás

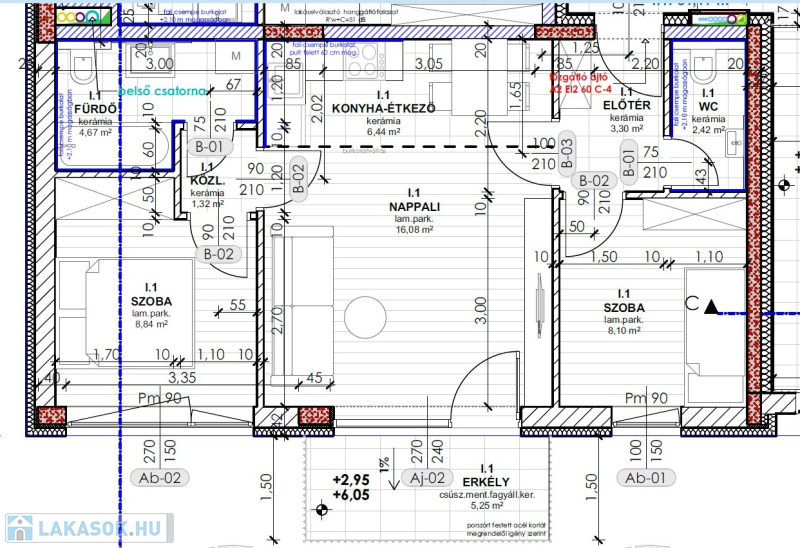
Már csak 2 db. lakás eladó. Kispest központjában, mégis csendes utcában 20 lakásos társasházban 51 - 70 m2-ig, nappali + 1, 2 és 3 szobás lakások 2025 év végi átadással eladók. Igény szerint részletes műszaki dokumentációt biztosítunk. M2 ár: 1,44 millió Ft. Teremgarázs ára: 7,0 millió Ft.

Magyarország piacvezető hitelközvetítője által egyedi kamatkedvezményekkel és bankfüggetlen, díjmentes hitelügyintézéssel is segítjük vásárlását. Hívjon bizalommal!

Lakás részletei

Ár: 76 990 000 Ft
Méret: 51 négyzetméter
Azonosító: 11563731
Emelet: 1. emelet
Építőanyag: Tégla
Ingatlan állapota: Kitűnő
Komfort fokozat: Összkomfort
Kilátás: utcai
Egész szobák: 3

Egyéb jellemzők

  • Erkély
  • Garázs
  • Lift
  • Kertkapcsolat
  • Tároló
  • Kocsibeálló

Így keressen lakást négy egyszerű lépésben. Csupán 2 perc, kötelezettségek nélkül!

Szűkítse a lakások
listáját
Válassza ki a megfelelő
lakást
Írjon a hirdetőnek
Várjon a visszahívásra