Eladó lakás Budapest XIX. ker 64 900 000 Ft

Leírás

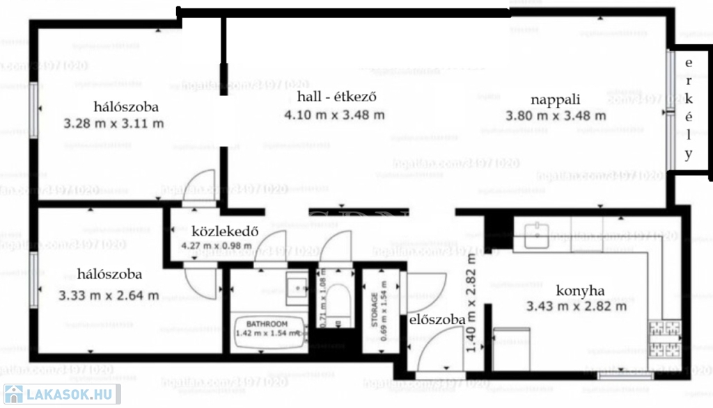
XIX. Kispesti lakótelepen, 4 emeletes szigetelt panel házban, 67 nm-es, 2 + 1 fél szobás, erkélyes FELÚJÍTANDÓ panel lakás eladó.

Az épület átesett a panel programon!
A lakás 1979-es építéskori állapotban van, tehát felújítandó.
A nyílászárókat 2010-ben műanyagra cserélték.
A radiátorok már szintén nem az eredetiek.
A lakás, K-Ny-i fekvésének köszönhetően, világos.
A fürdőszoba és a WC külön helyiségben kapott helyet.
A nappali az Ady Endre út felé néz, a két hálószoba az épület mögötti csendes parkra.

Az ingatlan tehermentes, azonnal birtokba vehető!

Hitelre vásárló ügyfeleinknek teljeskörű, ingyenes, bank semleges ügyintézéssel állunk rendelkezésére. Irodánk ügyvédje pedig kedvező díjszabással vállalja az adásvételi szerződés elkészítését.
Amennyiben még el kell adnia ingatlanát, kérem, tiszteljen meg bizalmával és kérje, nagy tapasztalattal rendelkező, az aktuális árakkal tisztában lévő, irodánk ajánlatát.

B.Zs.

Lakás részletei

Ár: 64 900 000 Ft
Méret: 67 négyzetméter
Azonosító: 11570494
Irodai azonosító: 388157
Cím: Ady Endre út
Emelet: 3. emelet
Építőanyag: Panel
Fűtés jellege: Távfűtés
Ingatlan állapota: Felújítandó
Komfort fokozat: Összkomfort
Építési év: 21-50 éves
Tulajdonviszony: Saját
Kilátás: kertre néző
Egész szobák: 2
Fél szobák: 1

Egyéb jellemzők

  • Erkély
  • Garázs
  • Lift
  • Pince
  • Tároló

Térkép


Így keressen lakást négy egyszerű lépésben. Csupán 2 perc, kötelezettségek nélkül!

Szűkítse a lakások
listáját
Válassza ki a megfelelő
lakást
Írjon a hirdetőnek
Várjon a visszahívásra