Eladó lakás Budapest XIX. ker 133 000 000 Ft

Leírás

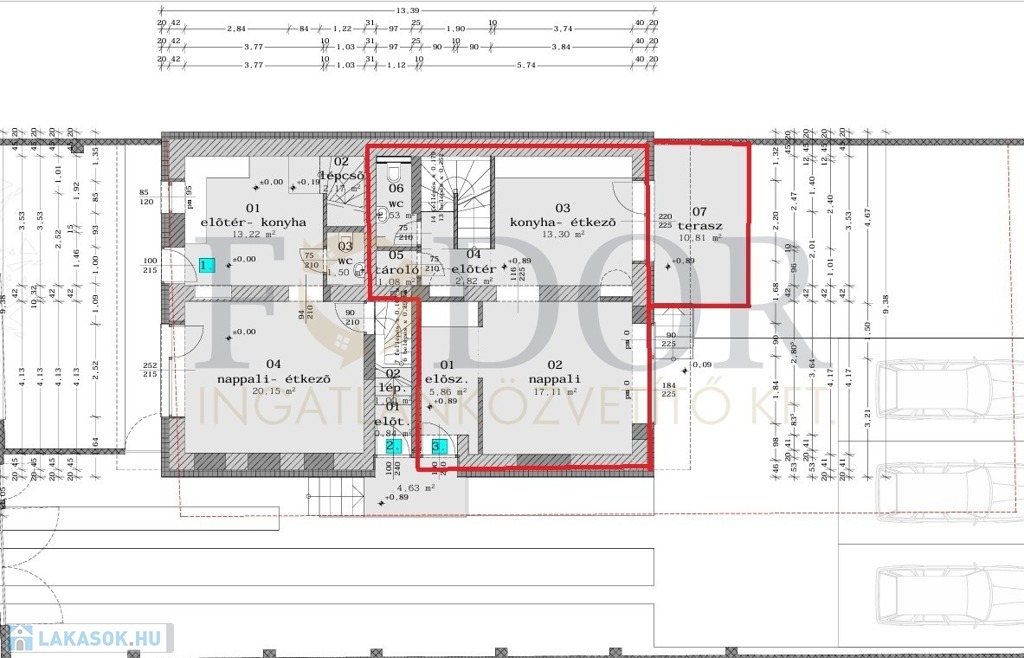
Belső kétszintes, kertkapcsolatos lakás, nappali + 2 hálószobával
Nagy alapterület, hatalmas privát kert – a projekt legexkluzívabb lakása Kispesten

Ha nem szeretne kompromisszumot kötni, és valódi kertkapcsolatos, tágas életteret keres, akkor ez a lakás a projekt kiemelkedő darabja.
Kispest kertvárosi részén, egy mindössze 3 lakásos, új építésű társasházban kínálok megvételre egy nagy alapterületű, saját, közel 200 m²-es kerttel rendelkező otthont, amely ritka lehetőség a piacon.
• Bruttó alapterület: 142,75 m² + terasz + erkély
• Nettó alapterület: 111,65 m²
• Privát kert: kb. 190 m²
• Elosztás: amerikai konyhás nappali + 2 szoba + fürdőszoba + wc + előszoba
• Extrák: pince szinten kialakítható edzőterem, mosókonyha, gépészeti helyiség (össz.: 37,71 m²)
• Ár: 133.000.000 Ft
Ez az ingatlan azoknak szól, akik a társasházi forma mellett is családi házas életérzést szeretnének.

Exkluzív, kis lakásszámú társasház
A projekt egyik legnagyobb előnye a mindössze 3 lakás, amely biztosítja a nyugalmat és a privát szférát.
A kínálatban még elérhető:
• egy belső kétszintes, saját kertkapcsolatos lakás, 86 m²-es nettó alapterület, nappali+ 2szoba + erkély + terasz + pince + 40 m²-es privát kert. Ára 99,9 Millió Ft.
• egy tetőtéri, tágas terekkel rendelkező, 89 négyzetméteres, nappali +2 szobás lakás. Ára: 96,9 MFt.

Műszaki tartalom – prémium szint minden részletben
• 38-as tégla falazat, 15 cm szigeteléssel
• Panasonic hőszivattyú rendszer
• padlófűtés minden helyiségben
• 3 db klíma
• elektromos redőnyök
• H tarifa
• motoros kapu, térkövezett beálló
A lakásnál még lehetőség van a burkolatok és beltéri ajtók kiválasztására.

Lokáció
Kispest kertvárosi része – csendes utca, kiváló infrastruktúra, minden fontos szolgáltatás perceken belül.

Átadás: 2026. II.-III. negyedév
Ez a lakás ideális választás, ha egy új építésű, energiatakarékos, modern otthont keres, amely nem csak műszakilag, hanem hangulatában is kiemelkedik a kínálatból.

Keressen bizalommal további információért, alaprajzokért és személyes egyeztetésért!
A leírás és az alaprajz kizárólag tájékoztató jellegű.
IRODÁNK INGYENES HITELÜGYINTÉZÉSSEL, TANÁCSADÁSSAL, SZÁMOS BANK AJÁNLATÁVAL, OTTHON START HITELLEL ÉS ÚJ CSOK PLUSZ FOLYÓSÍTÁSÁVAL VÁRJA ÜGYFELEIT.

Lakás részletei

Ár: 133 000 000 Ft
Méret: 142 négyzetméter
Azonosító: 11614362
Irodai azonosító: 346163
Emelet: Földszint
Építőanyag: Tégla
Ingatlan állapota: Kitűnő
Komfort fokozat: Összkomfort
Építési év: Új építésű
Egész szobák: 3

Egyéb jellemzők

  • Erkély
  • Lift
  • Kertkapcsolat

Így keressen lakást négy egyszerű lépésben. Csupán 2 perc, kötelezettségek nélkül!

Szűkítse a lakások
listáját
Válassza ki a megfelelő
lakást
Írjon a hirdetőnek
Várjon a visszahívásra