Eladó lakás Budapest XIX. ker 125 000 000 Ft

Leírás

Leírás
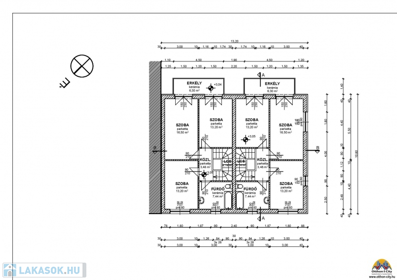
KISPESTEN ELADÓ EGY ÚJÉPÍTÉSŰ BELSŐ KÉTSZINTES 4 SZOBÁS, KERTES LAKÁS CSENDES HELYEN!!

XIX.kertvárosban eladó egy 140 nm-es belső kétszintes,4 szobás,duplakomfortos, garázsos kertkapcsolatos új lakás,a kert mérete 80 nm.Az ingatlan egy négylakásos társasház egyik lakása,egy nagy teleken.
Átadás:2025.tavasz.


-műszaki tartalom:
elektromos fűtés,padlófűtéssel,38 cm Ytong jól hőszigetelő főfalak vasbetonfödém,30 cm kőzetgyapot tető szigeteléssel,

-infrastruktúra:
a közelben, iskola,óvoda,játszótér,orvosi rendelő gyógyszertár, üzletek,

-közlekedés:
kiváló,5 perces sétávval több buszjárat is elérhető.(68,194,194/b,199)

Ingyenes hitel tanácsadással, kedvezményes jogi képviselettel lehetünk segítségére.
Energetikai szakvéleményre van szüksége? Jó helyre fordult.
Megtetszett az ingatlan, de sajátját még nem adta el? Levesszük a gond nagy részét a válláról, segítséget nyújtunk az eladásban is. Bízza ránk az értékesítését!
Kérésre ingyenes értékbecslést is végzünk az ingatlanán,hívjon minket bizalommal.

Térkép
XIX. kerület, Kispest-Óváros

Lakás részletei

Ár: 125 000 000 Ft
Méret: 140 négyzetméter
Azonosító: 11255169
Emelet: Földszint
Építőanyag: Tégla
Ingatlan állapota: Kitűnő
Kilátás: kertre néző
Egész szobák: 4

Egyéb jellemzők

  • Erkély
  • Garázs
  • Lift
  • Kertkapcsolat
  • Tároló
  • Kocsibeálló

Így keressen lakást négy egyszerű lépésben. Csupán 2 perc, kötelezettségek nélkül!

Szűkítse a lakások
listáját
Válassza ki a megfelelő
lakást
Írjon a hirdetőnek
Várjon a visszahívásra