Eladó lakás Budapest XIV. ker, Nagyzugló, 68 900 000 Ft

Leírás

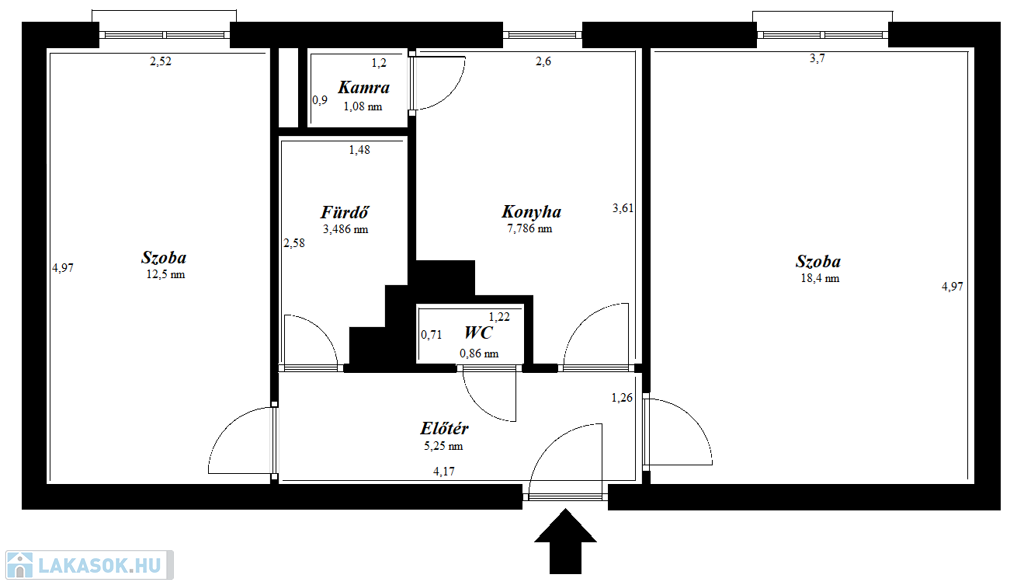
Eladó a XIV. kerületben Nagyzugló városrészben a Bolgárkertész utcában egy jó állapotú társasházban lévő II. emeleti, 49nm-es, 2 szoba + konyhás, D-i fekvésű, napfényes, egyedi fűtéses lakás 2 franciaerkéllyel.

Műanyag hang és hőszigetelő nyílászárók kerültek beépítésre, az ablakok a ház mögötti csendes park felé néznek, így rendkívül nyugodt a lakás.

A beosztás remek, a szobák különnyílóak de akár tovább is alakítható amerikai konyhás nappali + 2 hálószobássá is.

Központi elhelyezkedésének köszönhetően befektetés és iroda céljára is alkalmas a lakás.

A lakáshoz tartozik egy pincerész is.

A környék kiváló infrastruktúrával rendelkezik, az Árkád, IKEA, iskolák, rendelők, a főbb tömegközlekedési lehetőségek (2-es metró, több villamos és buszjárat) a közelben közvetlenül elérhetőek.

Irodánk ingyenes hiteltanácsadással áll ügyfeleink rendelkezésére. A VEVŐINK RÉSZÉRE A KÖZVETÍTÉS DÍJMENTES. A hirdetésben szereplő adatok tájékoztató jellegűek!

Lakás részletei

Ár: 68 900 000 Ft
Méret: 49 négyzetméter
Azonosító: 11577960
Cím: Bolgárkertész utca
Városrész: Nagyzugló
Emelet: 2. emelet
Építőanyag: Tégla
Fűtés jellege: Cserépkályha
Ingatlan állapota: Felújítandó
Komfort fokozat: Összkomfort
Építési év: 50 évesnél régebbi
Elhelyezkedés: Társasház
Tulajdonviszony: Saját
Kilátás: kertre néző
Kert: Közös telek
Egész szobák: 2

Egyéb jellemzők

  • Lift
  • Pince
  • Tároló

Térkép


Így keressen lakást négy egyszerű lépésben. Csupán 2 perc, kötelezettségek nélkül!

Szűkítse a lakások
listáját
Válassza ki a megfelelő
lakást
Írjon a hirdetőnek
Várjon a visszahívásra