Eladó lakás Budapest XIV. ker, Alsórákos, 56 000 000 Ft

Leírás

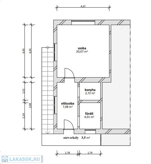
Zugló zöldövezetében (a most épülő Zugló városközponttal pont szemben) tulajdonostól, 37 négyzetméteres világos tégla építésű lakás eladó. Első emeleti, felette a padlástér található, 3 méteres belmagassággal, . A lakás saját lépcsőn közelíthető meg, és tartozik hozzá egy 100 nm2-es parkosított kizárólagos használatú kert, amin saját 25 nm2-es garázs is áll. Kuriózum Zuglóban!! Az ingatlannak saját mérőórái vannak (gáz, víz, nappali és éjszakai áram) a fűtése konvektoros, a meleg víz pedig gázkazánnal megoldott. A lakásban részlegesen történt már nyílászáró csere, hang és hőszigetelés és klimatizálás. A ház előtt ingyenes a parkolás. Pár percre található a Bosnyák téri piac, busz és villamos megállók. Kiváló egyedülállóknak, pároknak vagy irodának, rendelőnek vagy befektetésnek. Jelenleg is bérlők lakják.

Lakás részletei

Ár: 56 000 000 Ft
Méret: 37 négyzetméter
Azonosító: 11515619
Cím: Fűrész utca
Városrész: Alsórákos
Emelet: 1. emelet
Építőanyag: Tégla
Fűtés jellege: Konvektoros
Ingatlan állapota:
Komfort fokozat: Összkomfort
Építési év: 50 évesnél régebbi
Elhelyezkedés: Társasház
Tulajdonviszony: Saját
Kilátás: kertre néző
Kert: Saját kert
Egész szobák: 1

Egyéb jellemzők

  • Erkély
  • Garázs
  • Klíma
  • Kertkapcsolat
  • Tároló
  • Kocsibeálló

Térkép


Így keressen lakást négy egyszerű lépésben. Csupán 2 perc, kötelezettségek nélkül!

Szűkítse a lakások
listáját
Válassza ki a megfelelő
lakást
Írjon a hirdetőnek
Várjon a visszahívásra