Eladó lakás Budapest XIII. ker 51 900 000 Ft

Leírás


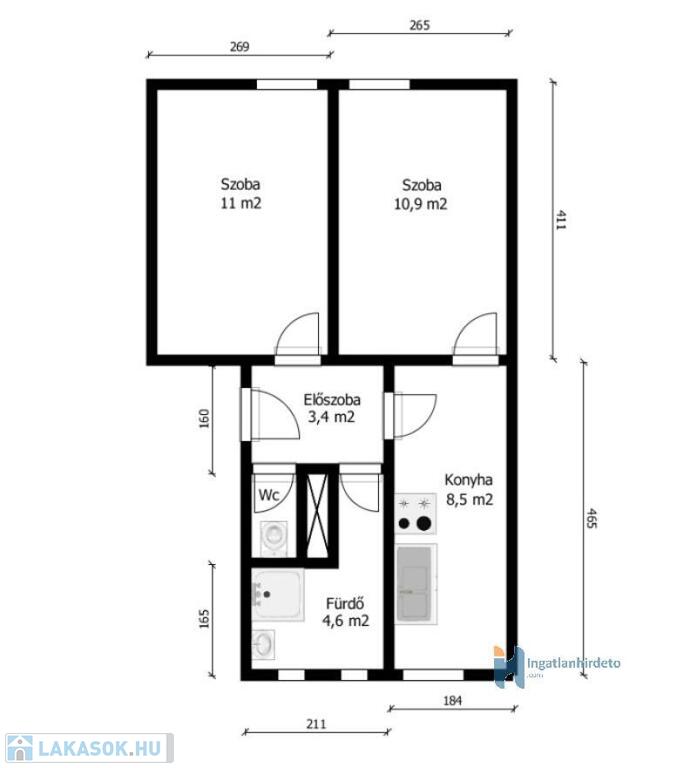
Elhelyezkedése: Társasház Emeleti elhelyezkedés: Emeleten Emelet száma: 1 Épület emeleteinek száma: 2 Tájolása: Nyugati tájolású Állapota: átlagos Komfort besorolása: összkomfortos Építési éve: 1950 Alapterülete: 40 m2 Szobák száma: 2szoba Fűtés módja: Gáz Fűtés típusa: Konvektoros Homlokzat állapot: Jó Építési mód: Tégla Parkolási lehetőség: Utcán Kilátás: Parkra nyíló kilátás Jellemzői: Alacsony rezsi, Csendes környék, Jó közlekedés Energetikai besorolás: Nincs adat Egyéb jellemzők: Pince Eladásra vonatkozó információk: Azonnal beköltözhető
Két félszoba miatt nem hitelezhető!

13. kerületben, Fiastyúk utcában eladó egy 1. emeleti, közepes állapotú, 40 m2, 2 félszobás (11 m2 és 10,9 m2), csendes, zöld kertre néző lakás.

A lakásban történtek felújítások, amely során kicserélték 2015-ben a villanyvezetékeket (réz vezeték), hideg burkolatokat, szanitereket és bejárati ajtót.

A tégla társasház 3 szintes a lépcsőház 6 lakásos, mely karban- és tisztán tartott. Lift nincs.
Az épület körül gondozott közös kert biztosítja a lakók kikapcsolódását és nyugalmát.

A lakás további jellemzői:
- azonnal birtokba vehető
- Ny-i fekvésű
- beépített konyha
- fürdőszoba zuhanyzóval
- külön wc
- belmagasság 2,8 m
- minden egyedileg mérhető

A lakáshoz tartozik a pince szinten egy 2 m2-es tároló, melyet a vételár tartalmaz.

Fűtés: konvektor (átalány 5.000 Ft/hó)

Közlekedés: metró (M3) buszok (15, 105, 120, 210) villamos (14) éjszakai járatok (914, 950) pár percen belül elérhetőek.

Közelben: bevásárlási lehetőségek, óvoda, iskola, bankok, posta, gyógyszertár stb.

További információért kérem, hívjon bizalommal, majd nézze meg személyesen, és tegyen egy ajánlatot!

Lakás részletei

Ár: 51 900 000 Ft
Méret: 40 négyzetméter
Azonosító: 11571096
Cím: Fiastyúk
Emelet: 1. emelet
Építőanyag: Tégla
Fűtés jellege: Konvektoros
Ingatlan állapota: Átlagos
Komfort fokozat: Összkomfort
Építési év: 1-5 éves
Elhelyezkedés: Társasház
Kilátás: panorámás
Egész szobák: 2

Egyéb jellemzők

  • Pince

Térkép


Így keressen lakást négy egyszerű lépésben. Csupán 2 perc, kötelezettségek nélkül!

Szűkítse a lakások
listáját
Válassza ki a megfelelő
lakást
Írjon a hirdetőnek
Várjon a visszahívásra