Eladó lakás Budapest XIII. ker 189 900 000 Ft

Leírás

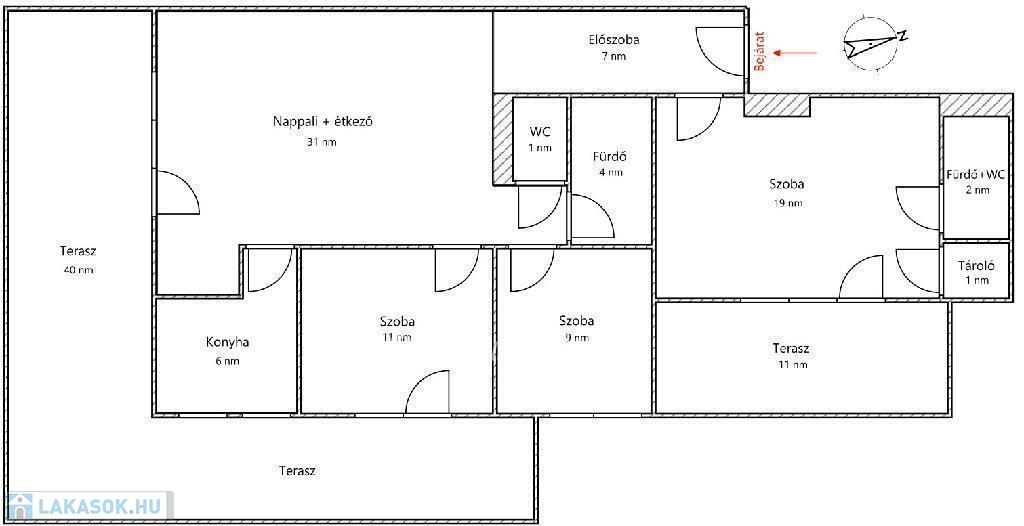
Penthouse-jellegű, újszerű luxuslakás eladó Angyalföldön - 91 nm lakótér + 51 nm terasz a 13. kerületben!
Eladásra kínálunk egy különleges adottságokkal rendelkező, újszerű, még sosem lakott, 4 szobás lakást a XIII. kerület dinamikusan fejlődő részén, Angyalföldön, egy 2018-ban épült, modern társasház legfelső, 5. emeletén.

Főbb jellemzők:

- 91 nm lakótér + 51 nm terasz (egy 40 nm-es és egy 11 nm-es terasz)

- Penthouse-jelleg, falszomszéd nélkül, rendkívül világos, napfényes, déli és délkeleti fekvésű

- 4 szoba, 2 fürdőszoba, kiváló elrendezés - akár két külön lakóegységgé is alakítható

- Beépített konyhabútorral felszerelt, különálló konyha

- Márvány díszítésű falak, minőségi burkolatok

- Padlófűtés, központi fűtés radiátorokkal + légkondicionáló minden szobában

- Óriási ablakfelületek, több kijárat a teraszokra

- Hívógombos lift, teljesen akadálymentes megközelítés

- Panorámás kilátás a belső parkosított udvarra, utcára, valamint a Budai hegyekre

- A lakáshoz két gépkocsibeálló tartozik a belső udvarban (a vételár része)

Lakás állapota:

A lakás teljesen újszerű, sosem lakták, így nincs szükség felújításra, még tisztasági festésre sem - azonnal költözhető!

Környék és közlekedés:

A lakás kiváló közlekedéssel rendelkezik: 3 perc sétára elérhetők a 20E, 30, 30A, 230, 105, 210, 201B buszok, valamint a 14-es villamos is. A közelben több élelmiszerbolt (Penny, Spar, Tesco, Aldi, Lidl), zöld parkok, kutyafuttatók, sétányok, fitneszparkok, valamint óvodák, iskolák, bölcsődék, orvosi rendelők és gyógyszertárak is megtalálhatók. A környéken a parkolás fizetős, de jóval kedvezőbb díjszabású, mint a kerület belsőbb részein.

További megjegyzés:

A környéken jelenleg is zajlanak fejlesztések és építkezések, amelyek a városrész további felértékelődését vetítik előre. A munkálatok gyors ütemben haladnak, és nem tartanak örökké - a környék így hosszú távon még rendezettebbé és élhetőbbé válik.

Ez a lakás tökéletes választás lehet családoknak, befektetőknek, vagy akár két generáció együttélésére is - ilyen adottságokkal és állapotban ritka lehetőség a piacon!

Lakás részletei

Ár: 189 900 000 Ft
Méret: 91 négyzetméter
Azonosító: 11565847
Irodai azonosító: M306250-5036977
Cím: Budapest 13. ker.i eladó 91 nm-es lakás
Emelet: 5. emelet
Építőanyag: Tégla
Fűtés jellege: Házközponti
Ingatlan állapota: Kitűnő
Komfort fokozat: Dupla komfort
Építési év: 6-10 éves
Kilátás: kertre néző
Egész szobák: 4

Egyéb jellemzők

  • Erkély
  • Garázs
  • Lift

Térkép


Így keressen lakást négy egyszerű lépésben. Csupán 2 perc, kötelezettségek nélkül!

Szűkítse a lakások
listáját
Válassza ki a megfelelő
lakást
Írjon a hirdetőnek
Várjon a visszahívásra