Eladó lakás Budapest XIII. ker 180 000 000 Ft

Leírás

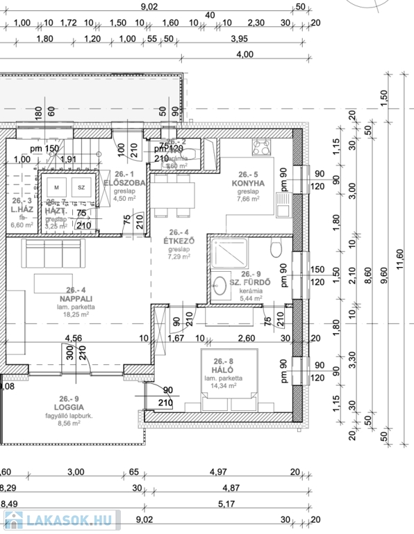
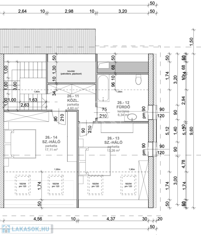
XIII. Angyalföldön, nappali+3 hálós, új építésű duplex!
A 18 lakásos új építésű társasház tervezett átadása 2026.második félévében.
A 125nm-es, 8 nm erkéllyel rendelkező belső kétszintes lakás magas műszaki tartalommal és minőségi anyagokból épül.
A társasház központi hűtő-fűtőberendezéssel rendelkezik.
A környéken, bevásárlási lehetőségek, iskolák, óvodák, sűrűn közlekedő buszjáratok, a Duna Plaza és a 3-as Metró a közelben.

Lakás részletei

Ár: 180 000 000 Ft
Méret: 125 négyzetméter
Azonosító: 11486364
Irodai azonosító: 378718
Cím: Angyalföldi duplex!
Emelet: 3. emelet
Építőanyag: Tégla
Fűtés jellege: Hőszivattyú
Ingatlan állapota: Kitűnő
Komfort fokozat: Dupla komfort
Építési év: Új építésű
Tulajdonviszony: Saját
Kilátás: kertre néző
Egész szobák: 4

Egyéb jellemzők

  • Erkély
  • Garázs
  • Lift
  • Pince
  • Tároló

Térkép


Így keressen lakást négy egyszerű lépésben. Csupán 2 perc, kötelezettségek nélkül!

Szűkítse a lakások
listáját
Válassza ki a megfelelő
lakást
Írjon a hirdetőnek
Várjon a visszahívásra