Eladó lakás Budapest XIII. ker 131 750 000 Ft

Leírás

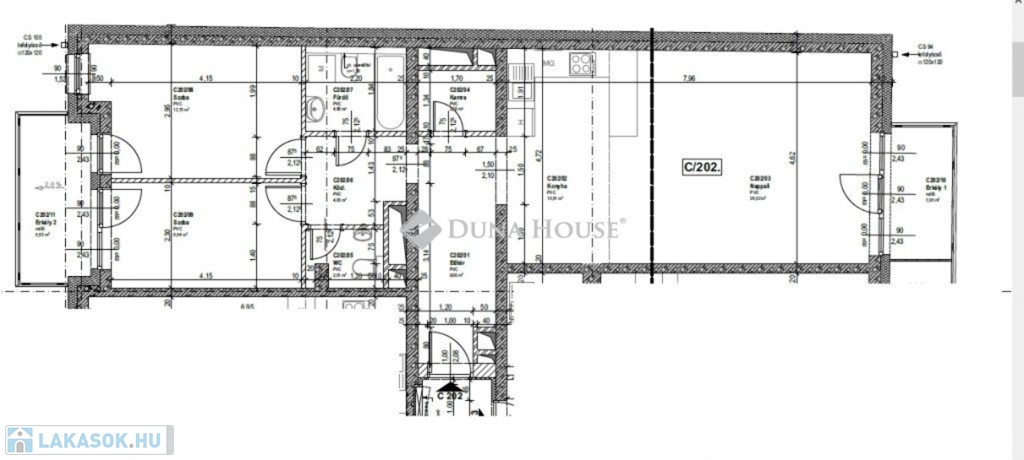
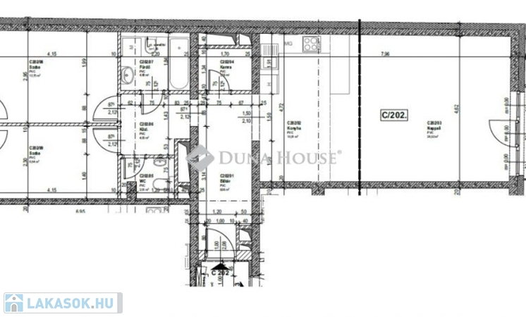
Budapesten, a XIII. kerület Angyalföld városrészén, egy 2021-ben épült, modern, liftes lakóparkban eladó egy 80 nm-es, 1. emeleti lakás 10 nm-es erkéllyel.A lakás amerikai konyhás nappalival, étkezővel és egy 2 hálószobával rendelkezik.A környék kiváló tömegközlekedési lehetőségekkel rendelkezik!A 14-es villamos, helyi autóbusz járatok, illetve akár az M3 metró megállója is csupán perc sétára található, így a belváros is könnyen megközelíthető.A lakáshoz teremgarázsban parkolóhely vásárolható vagy bérelhető.Találja meg nálunk leendő otthonát, aktuális befektetését!

Referencia szám: LK089178

Lakás részletei

Ár: 131 750 000 Ft
Méret: 85 négyzetméter
Azonosító: 11603696
Irodai azonosító: LK089178-5166427
Cím: Budapest 13. ker.i 85 nm-es lakás eladó
Emelet: 1. emelet
Építőanyag: Tégla
Fűtés jellege: Központi (egyedi mérővel)
Ingatlan állapota: Kitűnő
Építési év: 1-5 éves
Kilátás: kertre néző
Egész szobák: 3

Egyéb jellemzők

  • Erkély
  • Lift

Térkép


Így keressen lakást négy egyszerű lépésben. Csupán 2 perc, kötelezettségek nélkül!

Szűkítse a lakások
listáját
Válassza ki a megfelelő
lakást
Írjon a hirdetőnek
Várjon a visszahívásra