Eladó lakás Budapest XIII. ker 109 900 000 Ft

Leírás

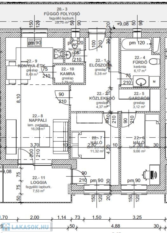
A XIII. kerület méltán közkedvelt, prémium kertvárosi részén, Mosoly utcában, III.emeleti, nappali +2 hálószobás, gardróbszobás, 72 m2-es, erkélyes, magas műszaki tartalommal, minőségi anyagokból megépülő, padlófűtéses és Fan-coil hűtéses új építésű társasházi lakás eladó!

A 18 lakásos, új építésű ház hőszivattyúval és napelemmel felszerelt.

A lakások emelt felszereltséggel kerülnek átadásra, a műszaki tartalom alapján.

A környék jól ellátott, közértek, iskolák, óvodák, gyakran közlekedő buszjáratok, a Duna-Pláza és a 3-as Metró közelsége, valamint zöld kertvárosi parkos környezet biztosítja a komfortérzetünket.

Az ingatlanok 2026 második félévében kerülnek átadásra.

További információkért hívjon bizalommal!

Lakás részletei

Ár: 109 900 000 Ft
Méret: 72 négyzetméter
Azonosító: 11501235
Irodai azonosító: 379883
Cím: Mosoly utca
Emelet: 3. emelet
Építőanyag: Tégla
Fűtés jellege: Hőszivattyú
Ingatlan állapota: Kitűnő
Komfort fokozat: Összkomfort
Építési év: Új építésű
Tulajdonviszony: Saját
Kilátás: kertre néző
Egész szobák: 3

Egyéb jellemzők

  • Erkély
  • Garázs
  • Lift
  • Pince
  • Tároló

Térkép


Így keressen lakást négy egyszerű lépésben. Csupán 2 perc, kötelezettségek nélkül!

Szűkítse a lakások
listáját
Válassza ki a megfelelő
lakást
Írjon a hirdetőnek
Várjon a visszahívásra