Eladó lakás Budapest XIII. ker 105 000 000 Ft

Leírás

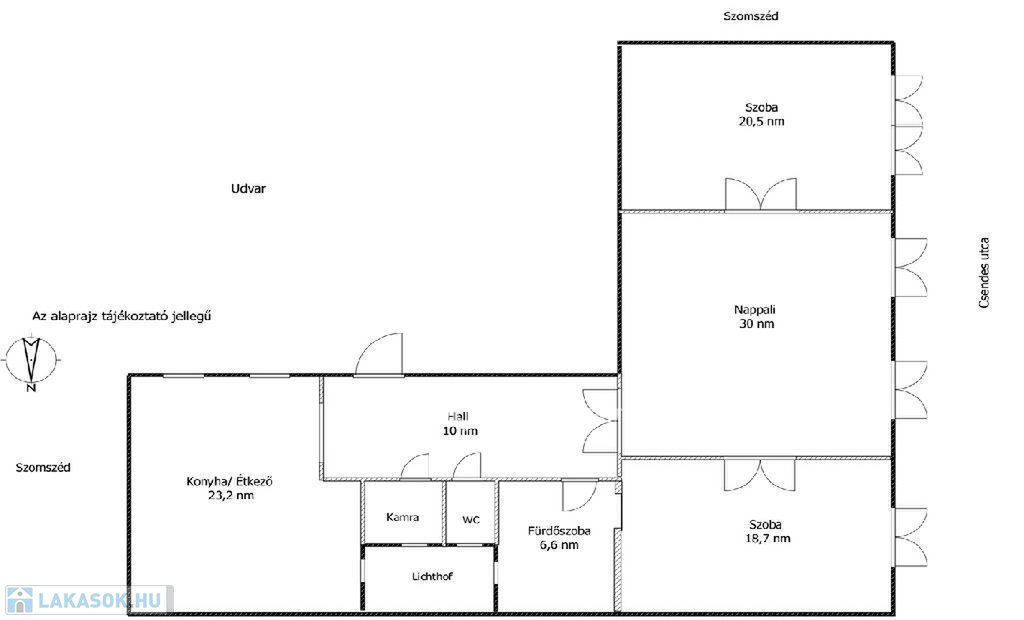
***Budapest szívében, ÚJLIPÓTVÁROSBAN, mégis CSENDES utcában eladó egy 116 nm-es, VILÁGOS, JÓ állapotú POLGÁRI lakás kivételes elhelyezkedéssel és ÁTALAKÍTÁSI lehetőségekkel!***

Budapest központjában, a WESTEND CITY CENTER és a NYUGATI pályaudvar közvetlen szomszédságában, ugyanakkor egy kellemesen CSENDES mellékutcában kínáljuk megvételre ezt a TÁGAS, napfényes, hall + 3 szobás POLGÁRI lakást.

Jelenleg 3 szoba + nagy, étkezővel egybenyitott konyha elrendezésű, JÓ állapotú ingatlan.
A lakás igazi ritkaság a piacon: méretéből adódóan könnyedén 2, akár 3 különálló lakásra is OSZTHATÓ, és a kialakítás lehetővé teszi egy új, külön bejárat megnyitását is ez komoly értéknövelő és befektetési lehetőség.

Az SzMSz nem tiltja a rövid távú lakáskiadást sem.

Műszaki háttér és állapot: a lakásban és a társasházban megtörtént a teljes cső- és elektromos hálózat cseréje; FOLYAMATOSAN KARBANTARTOTT, kulturált ház; a tető felújítása nemrég lezárult; lift jelenleg nincs; a lakáshoz saját, száraz pincei TÁROLÓ tartozik.

A lakás 1/1 tulajdonosé, per- és tehermentes, néhány hónapon belül rugalmasan költözhető.

A különleges elhelyezkedés és a nagy alapterület miatt tökéletes választás kiadásra, befektetésnek vagy annak a családnak, aki a belváros pezsgése mellett szeretné élvezni egy klasszikus polgári otthon eleganciáját és a mellékutca nyugalmát.
A környéken az ehhez hasonló, nagy alapterületű polgári lakások értéke folyamatosan emelkedik, így hosszú távon is biztos befektetést jelent.

Ha ingatlan vásárlásával egy ÉRTÉKÁLLÓ BEFEKTETÉST is szeretne egyben, akkor ez egy remek lehetőség az ön számára.

Az OTP Ingatlanpont, mint egyetlen közvetlen banki hátterű ingatlanközvetítő társaság teljes körű ügyintézéssel és kedvezményes pénzügyi konstrukciókkal áll ügyfelei rendelkezésére!
VIP-szolgáltatást nyújtunk az OTP-hiteltermékek ügyintézésében.
Jogi és pénzügyi segítséget nyújtanak szakértőink, hogy az adásvétel folyamata gördülékeny legyen.

Ha felkeltette érdeklődését az ingatlan, kérem, hívjon bizalommal akar hétvégén is!

Lakás részletei

Ár: 105 000 000 Ft
Méret: 116 négyzetméter
Azonosító: 11607676
Irodai azonosító: M323890-5180902
Cím: Budapest 13. ker.i 116 nm-es lakás eladó
Emelet: 3. emelet
Építőanyag: Tégla
Fűtés jellege: Cirkó
Ingatlan állapota:
Komfort fokozat: Összkomfort
Építési év: 50 évesnél régebbi
Kilátás: utcai
Egész szobák: 3

Térkép


Így keressen lakást négy egyszerű lépésben. Csupán 2 perc, kötelezettségek nélkül!

Szűkítse a lakások
listáját
Válassza ki a megfelelő
lakást
Írjon a hirdetőnek
Várjon a visszahívásra