Eladó lakás Budapest XIII. ker 99 500 000 Ft

Leírás

FELÚJÍTANDÓ INGATLAN ÚJLIPÓTVÁROS SZÍVÉBEN!
Eladó Budapest XIII. kerületének egyik legnépszerűbb területén, Újlipótvárosban, egy 72 m2-es, erkélyes lakás.
Az ingatlan egy Bauhaus stílusú, liftes társasház 3. emeletén található.
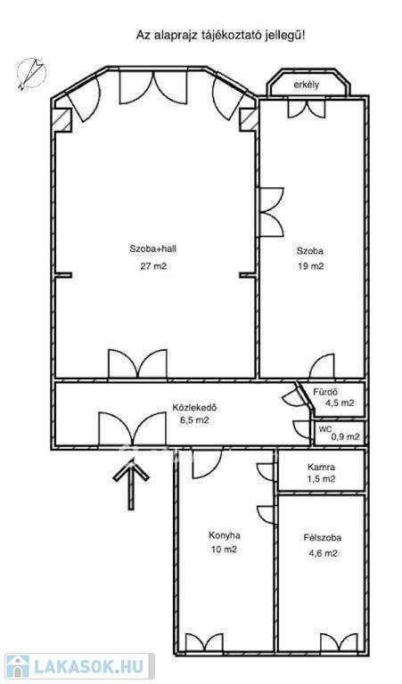
A lakásba a felújított, lépcsőházból egy elegáns kétszárnyú ajtón keresztül juthatunk be. A felújítandó ingatlanban 2,5 szoba hall, konyha, spájz, fürdőszoba, külön WC található.
Az utcára néző szobák és az erkély délkeleti fekvésűek. A északnyugati tájolású félszoba és a konyha egy rendezett belső udvarra néznek.
A fürdőszoba az előszobából és az egyik szobából is megközelíthető. A konyhából nyíló félszoba akár egy nagyobb étkezős konyhává is átalakítható igény szerint. Tulajdonosaik nagyon vigyáztak az ingatlanra, melynek köszönhetően (a ház kora ellenére), a szobákban és az előszobában lévő parketták jó állapotban vannak. Fűtése távfűtés.
A lakás jó fekvésének köszönhetően szép, napos, világos otthon kialakítására van lehetőség.
A társasház tiszta, rendezett, a lakóközössége kulturált.
A lokáció kitűnő, közel a Jászai Mari térhez, Duna-parthoz, Szent István parkhoz, Nyugati térhez, Westendhez és a Margitszigethez. Tömegközlekedéssel a város minden pontja rövid időn belül elérhető.
Amennyiben hirdetésem felkeltette érdeklődését, vagy szeretné megtekinteni az ingatlant, várom hívását!

Referencia szám: M316976

Lakás részletei

Ár: 99 500 000 Ft
Méret: 72 négyzetméter
Azonosító: 11611273
Irodai azonosító: M316976-5099109
Emelet: 3. emelet
Építőanyag: Tégla
Fűtés jellege: Távfűtés
Ingatlan állapota: Felújítandó
Komfort fokozat: Összkomfort
Építési év: 50 évesnél régebbi
Kilátás: utcai
Egész szobák: 2
Fél szobák: 1

Egyéb jellemzők

  • Lift

Térkép


Így keressen lakást négy egyszerű lépésben. Csupán 2 perc, kötelezettségek nélkül!

Szűkítse a lakások
listáját
Válassza ki a megfelelő
lakást
Írjon a hirdetőnek
Várjon a visszahívásra