Eladó lakás Budapest XIII. ker 100 050 000 Ft

Leírás

ÚJ ÉPÍTÉSŰ INGATLANOK 2027 KÖLTÖZÉSSEL!

Angyalföld:

Angyalföld Budapest XIII. kerületének legnagyobb városrésze, amely az egykori ipari zónából mára modern lakó- és irodanegyeddé alakult át. Hagyományos ipari zónák helyén ma már irodaházak, kereskedelmi egységek és a Duna-parton luxuslakások találhatók.

Az épület tettérbeépítése során törekedtünk olyan lakások kialakítására, ami a mai lakásigényeknek felel
meg, mint amerikai konyhás nappali és külön hálószoba. Változatos lakásokat alakítottunk ki úgy
méretükben, mint elrendezésükben.

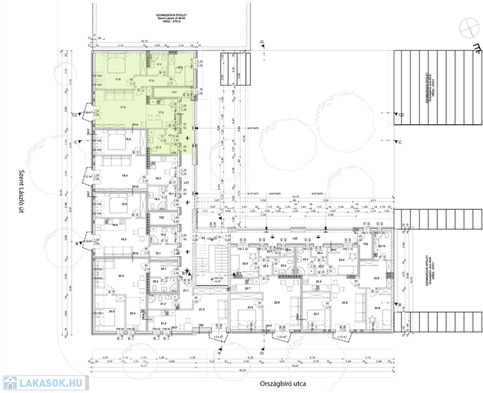
17 lakás.
Előszoba: 2.35 nm.
Fürdőszoba: 5.49 nm.
Konyha+ étkező: 10,01 nm.
Nappali: 21.48 nm.
Közlekedő: 4.39 nm.
Hálószoba: 17.08 nm.
Fürdőszoba: 4.05 nm.
Halószoba: 8.53 nm.
Erkély: 1.52 nm.

Fizetés: készültségi fokozathoz kötött fizetési ütemezés.

A további kérdésekkel és a megtekintéssel kapcsolatban, kérem keressen a megadott mobil számon.

Lakás részletei

Ár: 100 050 000 Ft
Méret: 69 négyzetméter
Azonosító: 11600663
Irodai azonosító: 392819
Cím: Országbíró utca
Emelet: 2. emelet
Építőanyag: Tégla
Fűtés jellege: Hőszivattyú
Ingatlan állapota: Kitűnő
Komfort fokozat: Összkomfort
Építési év: Új építésű
Tulajdonviszony: Saját
Kilátás: utcai
Egész szobák: 2
Fél szobák: 1

Egyéb jellemzők

  • Erkély
  • Garázs
  • Lift
  • Pince
  • Tároló

Térkép


Így keressen lakást négy egyszerű lépésben. Csupán 2 perc, kötelezettségek nélkül!

Szűkítse a lakások
listáját
Válassza ki a megfelelő
lakást
Írjon a hirdetőnek
Várjon a visszahívásra