Eladó lakás Budapest XIII. ker 99 900 000 Ft

Leírás


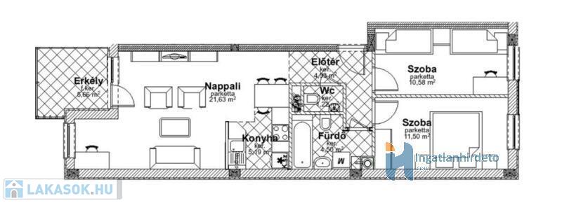
Elhelyezkedése: Társasház Emeleti elhelyezkedés: Emeleten Emelet száma: 3 Épület emeleteinek száma: 4 Tájolása: Dél-nyugai tájolású Állapota: Újszerű Komfort besorolása: összkomfortos Építési éve: 2012 Alapterülete: 62 m2 Szobák száma: 1 + 2 szoba Közművek: Gáz, Víz, Villany, Csatorna Fűtés típusa: Cirkó Homlokzat állapot: Újszerű Építési mód: Tégla Parkolási lehetőség: Garázsban Kilátás: Parkra nyíló kilátás Jellemzői: Alacsony rezsi, Csendes környék, Jó közlekedés Energetikai besorolás: Nincs adat Egyéb jellemzők: Erkély, Lift Terhelések: Tehermentes ingatlan
13. kerületben, Frangepán utcában eladó egy újszerű állapotú, 62 m2, 1 szobás + 2 félszobás, teraszos (5,7 m2), csendes, világos, belső zöld udvarra néző lakás.

A 2012-ben téglából (30 cm Leier tégla és 8 cm szigetelés) épült társasház 4 emeletes és 11 lakásos. A lakás a 3. emeleten található. Lift szolgálja a lakók kényelmét. A lépcsőház karban- és tisztán tartott. Az épület mögött közös kert biztosítja a lakók kikapcsolódását és nyugalmát.

A lakás további jellemzői:
- tehermentes
- DNY-i és ÉK-i fekvésű
- beépített konyha gépekkel (sütő, főzőlap, elszívó)
- klímaberendezés
- redőnyös, szúnyoghálós ablakok
- terasz (5,7 m2) naprolóval
- fürdőszoba káddal
- külön wc
- minden egyedileg mérhető

Közös költség: 28.552 Ft/hó (garázzsal)

A lakáshoz tartozik a teremgarázsban 1 db gépkocsi beállóhely, melynek ára további 7 M Ft.

Fűtés: zárt rendszerű cirkó kazán (télen 12.000 Ft/hó)

Közlekedés: buszok (20E, 30, 32, 105, 210, 230) villamos (14) éjszakai járat (914) pár percen belül elérhetőek.

Közelben: bevásárlási lehetőségek, óvoda, iskola, bankok, posta, gyógyszertár stb.

További információért kérem, hívjon bizalommal, majd nézze meg személyesen, és tegyen egy ajánlatot!

Lakás részletei

Ár: 99 900 000 Ft
Méret: 62 négyzetméter
Azonosító: 11571092
Cím: Frangepán
Emelet: 3. emelet
Építőanyag: Tégla
Fűtés jellege: Cirkó
Ingatlan állapota: Kitűnő
Komfort fokozat: Összkomfort
Építési év: 1-5 éves
Elhelyezkedés: Társasház
Kilátás: panorámás
Egész szobák: 1
Fél szobák: 2

Egyéb jellemzők

  • Erkély
  • Garázs
  • Lift

Térkép


Így keressen lakást négy egyszerű lépésben. Csupán 2 perc, kötelezettségek nélkül!

Szűkítse a lakások
listáját
Válassza ki a megfelelő
lakást
Írjon a hirdetőnek
Várjon a visszahívásra