Eladó lakás Budapest XII. ker, Németvölgy, 199 000 000 Ft

Leírás

Világos, tágas, nagypolgári elegancia a MOM Park közelében – TELJESEN FELÚJÍTOTT lakás a XII. kerület szívében!

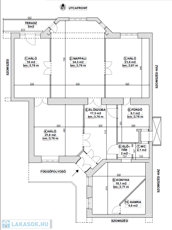
A MOM Park közvetlen közelében, a XII. kerület egyik hangulatos mellékutcájában, eladó a késő szecessziós és funkcionalista stílusjegyeket mutató társasházban, TELJES KÖRŰEN felújított, első emeleti, 151 nm hasznos alapterületű nagypolgári lakás, amely a klasszikus értékeket ötvözi a modern életvitel elvárásaival.

A rendezett társasház első emeletén – ami a félemelet miatt a második szintet jelenti - található, 151 négyzetméteres ingatlan a nagy belmagasságnak és a kivételesen jól szervezett térelosztásnak köszönhetően valóban tágas és világos életteret kínál.

Az utcai fekvésű, napsütötte helyiségek, a hatalmas ablakok és a dél-nyugati tájolású terasz a lakás minden pontján kellemes légkört biztosítanak.

Az impozáns bejáraton keresztül egy nagy méretű hallba érkezünk, ahonnan a modern konyhával és étkezővel kialakított tágas tér is nyílik, melyhez praktikus kamra is kapcsolódik.

A nappali szalon jellegű - az utcafront felé kiugró sokszögű része miatt -, fényárban úszó tér, amelyből két külön nyíló, kényelmes hálószoba és a hangulatos erkély is elérhető.

A harmadik hálószoba is külön bejárattal megközelíthető, így a lakás ideális választás lehet akár nagyobb család számára is.

A kádas, elegáns fürdőszoba központi elhelyezkedésű, a mellékhelyiség külön kapott helyet a praktikum jegyében.

Az ingatlan néhány éve esett át teljes körű műszaki és esztétikai felújításon: új elektromos-, víz- és csatornahálózat, korszerű kondenzációs kazán, padlóban elevezett fűtéscsövekkel, új nyílászárók hőszigetelő üvegezéssel, valódi bambusz parketta, magas fényű frontokkal szerelt, teljesen gépesített konyhabútor (indukciós főzőlappal és dupla WOK gázégőkkel), valamint modern szaniterek biztosítják az esztétikus megjelenést.

A kényelemről és a biztonságról a gépi szellőztető rendszer, a redőnyök és a kiépített riasztó rendszer gondoskodik.

Lokációja kiemelkedő: a csendes mellékutca nyugalma és a MOM PARK és környezete nyújtotta szolgáltatások (bevásárlási lehetőségek, magán egészségügyi intézmények, sportolási lehetőségek, óvodák, iskolák) közelsége egyszerre biztosítja a nyugodt otthoni légkört és az élhető, városi kényelmet.
A kiváló tömegközlekedési kapcsolatoknak (17-es, 61-es villamos, 105-ös, 210-es, 139-es, 140-es, 178-as busz) köszönhetően a belváros és Buda más részei is gyorsan elérhetőek.

Ez a lakás valódi otthont kínál azok számára, akik értékelik a klasszikus polgári stílust, a világos tereket, a modern kényelmet és a kiváló elhelyezkedést, de adottságai alapján reprezentatív iroda vagy igényes magánpraxis kialakítása is lehetséges.

Amennyiben felkeltette érdeklődését, kérem keressen a megadott elérhetőségeken, további részletekkel és alaprajzokkal is állok rendelkezésére!

Lakás részletei

Ár: 199 000 000 Ft
Méret: 151 négyzetméter
Azonosító: 11549966
Városrész: Németvölgy
Emelet: 1. emelet
Építőanyag: Tégla
Fűtés jellege: Cirkó
Ingatlan állapota: Felújított
Komfort fokozat: Összkomfort
Építési év: 50 évesnél régebbi
Elhelyezkedés: Társasház
Tulajdonviszony: Saját
Kilátás: utcai
Egész szobák: 4

Egyéb jellemzők

  • Erkély
  • Garázs
  • Klíma
  • Lift

Így keressen lakást négy egyszerű lépésben. Csupán 2 perc, kötelezettségek nélkül!

Szűkítse a lakások
listáját
Válassza ki a megfelelő
lakást
Írjon a hirdetőnek
Várjon a visszahívásra