Eladó lakás Budapest XII. ker 130 000 000 Ft

Leírás

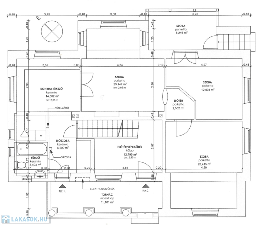
Eladásra kínálunk Kútvölgy kedvelt részén egy Ősfás 1100 m2 területen elhelyezkedő patinás házban található 100 m2 panorámás lakást. Az ingatlanhoz 150-200 m2 kertrész is tartozik.

A 2 szobás 100 m2-es lakás az épület első emeltén helyezkedik el.

Lakás elrendezése:

Földszint:
• Lépcsőház - gardrob 12,7 m2
• Tornác 5,5 m2

Emelet:
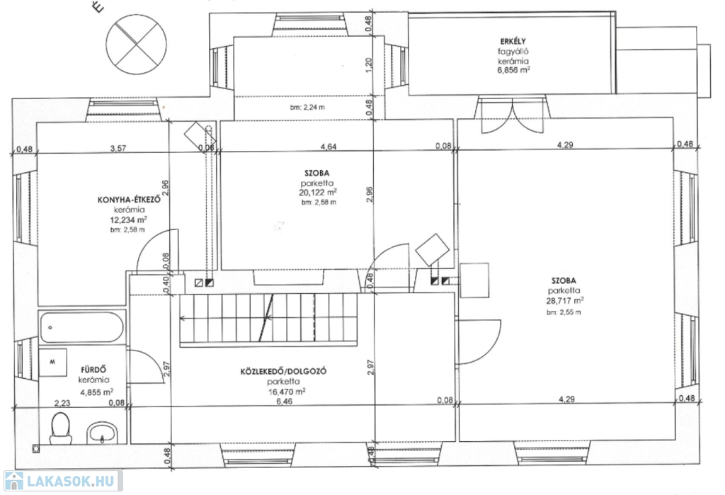
• 2 db. szoba 20,1 m2 + 28,7 m2
• Közlekedő -dolgozó sarok 16,47 m2
• Konyha 12,2 m2
• Fürdőszoba 4,8 m2
• Erkély 7 m2

Kert:
• 150 - 200 m2 kertrész

A ház 1940-ben épült 55 cm vastag téglafalakkal. Az épület szerkezetileg jó állapotú – feljutása és korszerűsítése esedékes.

Az ingatlant fiatal pároknak -családoknak egyaránt ajánljuk.

A társasházban párhuzamosan kerül értékesítésre a hírdetésben szereplő 100 m2 és az az alatta található 93 m2 db.földszinti lakás.

Amennyiben Önnek a vásárláshoz szüksége lenne hitelre egyedi kedvezménnyel,kezdeményezheti a kapcsolatfelvételt bankfüggetlen hitelügyintézőinkkel, teljesen DÍJMENTESEN.

Az ingatlan részletes ismertetése és bemutatása előre egyeztetett időpontban lehetséges, melyet nagyon rugalmasan kezelünk, akár HÉTVÉGÉN is.

Amennyiben felkeltette az érdeklődését, további kérdéseivel kapcsolatban várom jelentkezését!

Lakás részletei

Ár: 130 000 000 Ft
Méret: 100 négyzetméter
Azonosító: 11570463
Irodai azonosító: 388132
Cím: Kútvölgy panorámás lakás!
Emelet: 1. emelet
Építőanyag: Tégla
Fűtés jellege: Egyéb
Ingatlan állapota: Felújítandó
Komfort fokozat: Dupla komfort
Építési év: 50 évesnél régebbi
Tulajdonviszony: Saját
Kilátás: panorámás
Egész szobák: 2

Egyéb jellemzők

  • Erkély
  • Garázs
  • Lift
  • Pince
  • Tároló

Térkép


Így keressen lakást négy egyszerű lépésben. Csupán 2 perc, kötelezettségek nélkül!

Szűkítse a lakások
listáját
Válassza ki a megfelelő
lakást
Írjon a hirdetőnek
Várjon a visszahívásra