Eladó lakás Budapest XII. ker 116 000 000 Ft

Leírás

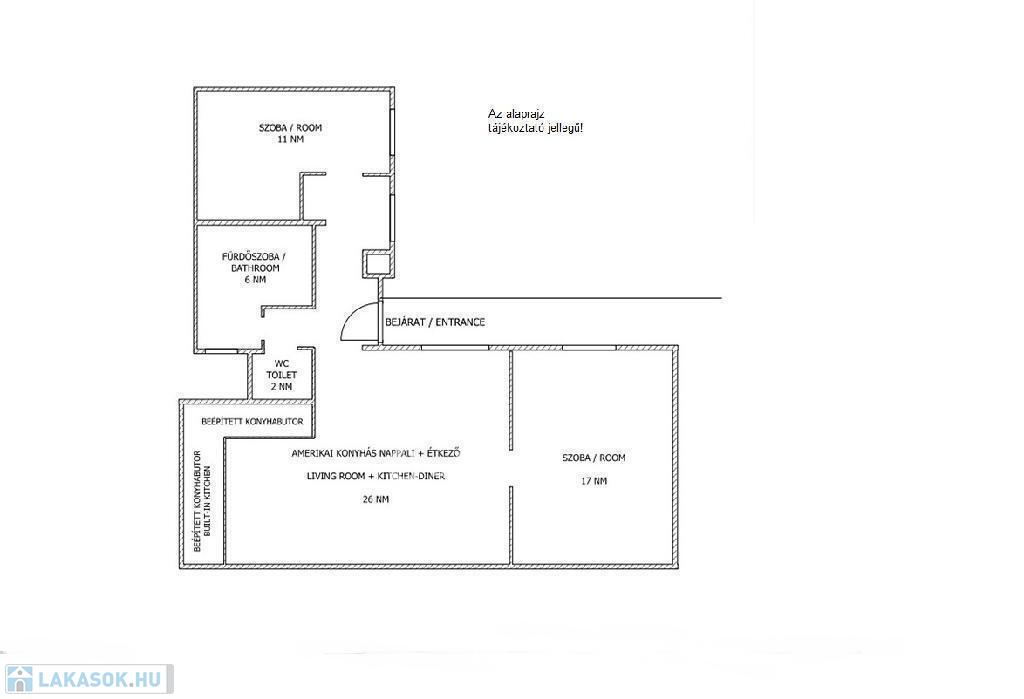
Budapest XII.kerületében, a Déli pályaudvar szomszédságában eladó egy 67 m2-es, 3 szobás, rendívül igényesen felújított, második emeleti luxuslakás. A lakás 1/1-es tulajdon, igény és tehermentes, azonnal költözhető. Minden a helyén van, az új tulajdonosnak csak a személyes holmiait kell hoznia.
A fűtése és a használatimelelegviz ellátása gáz cirkóval biztosított.
A környék kereskedelmi ellátottsága széleskörű, villamos, autóbusz és metró megállók rövid sétaútra vannak.

Ha bármilyen kérdése van, vagy megtekintené a lakást, kérem hívjon bizalommal a hét bármely napján, reggel 8 és este 8 között.

Lakás részletei

Ár: 116 000 000 Ft
Méret: 64 négyzetméter
Azonosító: 11560605
Irodai azonosító: M310470-5019395
Cím: Budapest 12. ker.i eladó 64 nm-es lakás
Emelet: 2. emelet
Építőanyag: Tégla
Fűtés jellege: Cirkó
Ingatlan állapota: Kitűnő
Komfort fokozat: Összkomfort
Építési év: 50 évesnél régebbi
Kilátás: udvari
Egész szobák: 3

Térkép


Így keressen lakást négy egyszerű lépésben. Csupán 2 perc, kötelezettségek nélkül!

Szűkítse a lakások
listáját
Válassza ki a megfelelő
lakást
Írjon a hirdetőnek
Várjon a visszahívásra