Eladó lakás Budapest XI. ker 85 811 300 Ft

Leírás

Kész lakások Péterhegyen, az OTP Ingatlanpont projektértékesítő szakértőitől.
Használatbavételi engedély van. Akár azonnal költözhető szerződéskötés után.
OTP hitelekhez kamatkedvezményt adunk a nálunk vásárló ügyfeleinknek!
Hitel, Start Hitel, és CSOK tájékoztatás, már a megtekintést követően, díjmentesen elérhető!
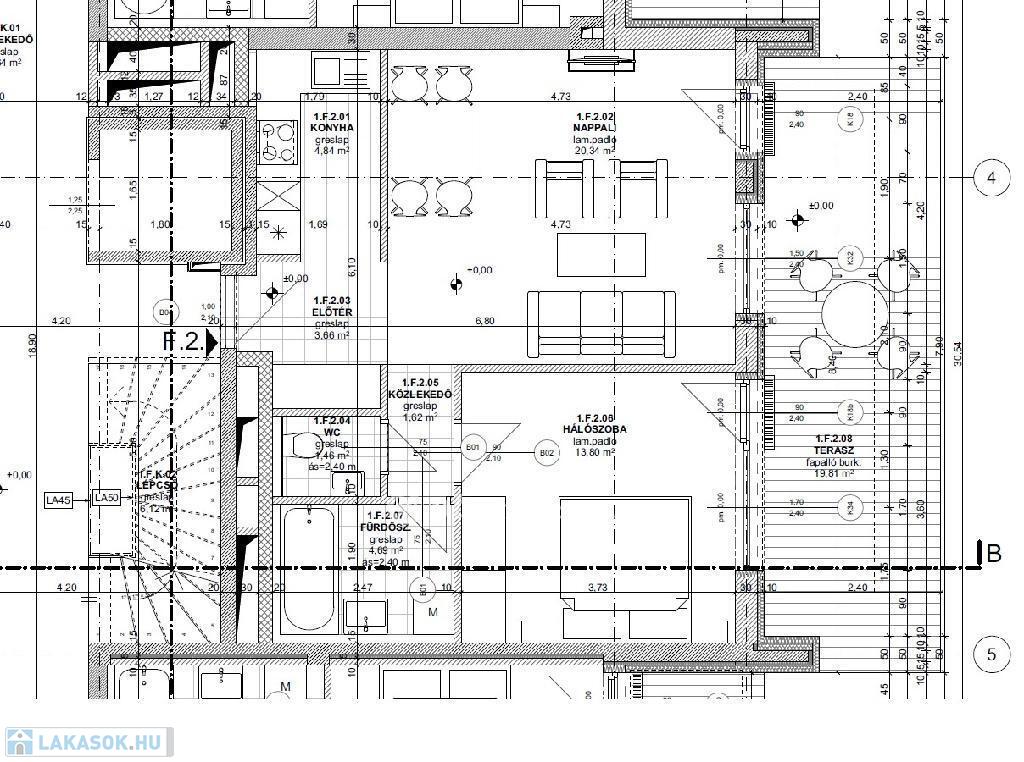
Lakások mérete: 49 nm-es, 2 szobás lakástól a 150 nm-es, 5 szobás és a tetőteraszos, exkluzív penthouseig.
Valamennyi lakáshoz lehetőség nyílik garázs vásárlására.
3-5 nm nagyságú tárolók választhatók.
Tudjon meg többet, hívjon bizalommal!

Lakás részletei

Ár: 85 811 300 Ft
Méret: 50 négyzetméter
Azonosító: 11574732
Irodai azonosító: M224962-5069525
Cím: Budapest 11. ker.i eladó 50 nm-es lakás
Emelet: Földszint
Építőanyag: Tégla
Fűtés jellege: Házközponti (egyedi mérővel)
Ingatlan állapota: Épülő
Komfort fokozat: Összkomfort
Építési év: Új építésű
Kilátás: kertre néző
Egész szobák: 2

Egyéb jellemzők

  • Erkély
  • Garázs
  • Lift

Térkép


Így keressen lakást négy egyszerű lépésben. Csupán 2 perc, kötelezettségek nélkül!

Szűkítse a lakások
listáját
Válassza ki a megfelelő
lakást
Írjon a hirdetőnek
Várjon a visszahívásra