Eladó lakás Budapest XI. ker 104 648 000 Ft

Leírás

Kész lakások Péterhegyen, az OTP Ingatlanpont projektértékesítő szakértőitől.
OTP hitelekhez kamatkedvezményt adunk a nálunk vásárló ügyfeleinknek!
Hitel és CSOK tájékoztatás, már a megtekintést követően, díjmentesen elérhető!
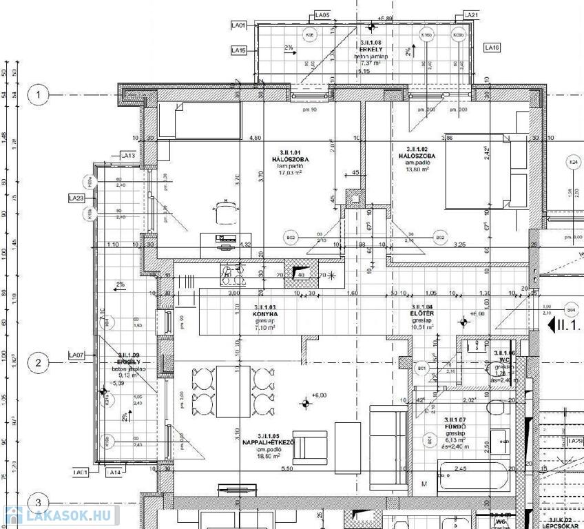
Lakások mérete: 43 nm-es, 1,5 szobás lakástól a 150 nm-es, 5 szobás és a tetőteraszos, exkluzív penthouseig.
Valamennyi lakáshoz lehetőség nyílik garázs vásárlására.
5-10 nm nagyságú tárolók választhatók.
Tudjon meg többet, hívjon bizalommal!

Lakás részletei

Ár: 104 648 000 Ft
Méret: 75 négyzetméter
Azonosító: 11594704
Irodai azonosító: M224837-5131128
Cím: Budapest 11. ker.i eladó 75 nm-es lakás
Emelet: 2. emelet
Építőanyag: Tégla
Fűtés jellege: Házközponti (egyedi mérővel)
Ingatlan állapota: Épülő
Komfort fokozat: Összkomfort
Építési év: Új építésű
Kilátás: kertre néző
Egész szobák: 3

Egyéb jellemzők

  • Erkély
  • Garázs
  • Lift

Térkép


Így keressen lakást négy egyszerű lépésben. Csupán 2 perc, kötelezettségek nélkül!

Szűkítse a lakások
listáját
Válassza ki a megfelelő
lakást
Írjon a hirdetőnek
Várjon a visszahívásra