Eladó lakás Budapest XI. ker 100 000 000 Ft

Leírás

Csomagajánlat: Lakás + garázs egyben!!

Kész lakások Péterhegyen, az OTP Ingatlanpont projektértékesítő szakértőitől.
OTP hitelekhez kamatkedvezményt adunk a nálunk vásárló ügyfeleinknek!
Hitel és CSOK tájékoztatás, már a megtekintést követően, díjmentesen elérhető!
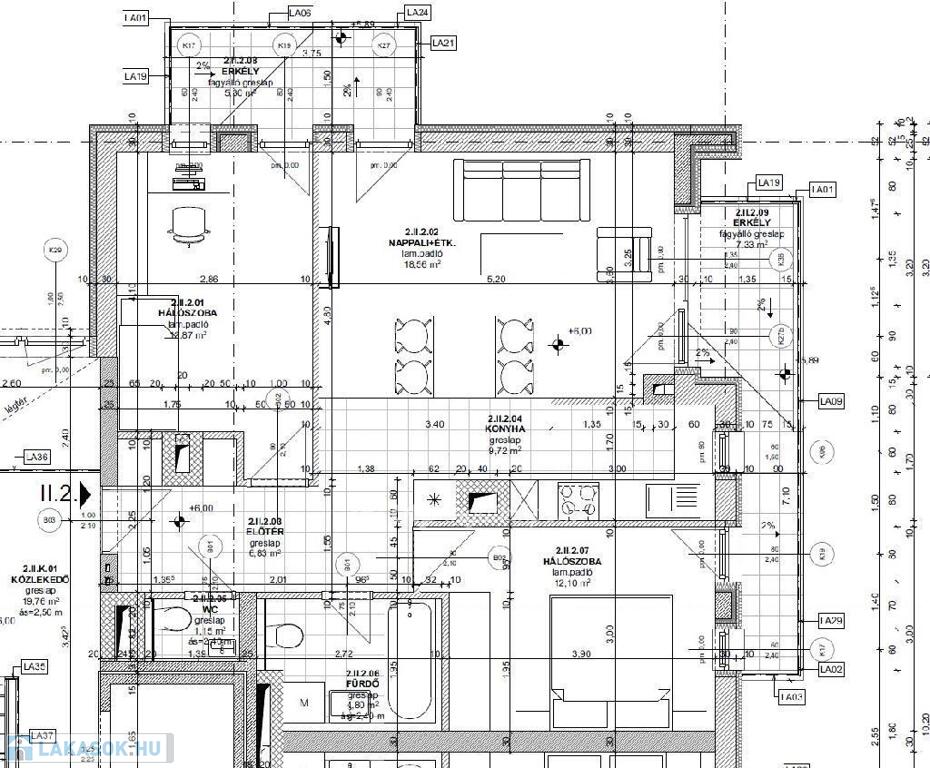
Lakás mérete: 66 nm-es, 3 szobás
Ebben az esetben a garázs benne van az árban.
3-5 nm nagyságú tároló választható.
Tudjon meg többet, hívjon bizalommal!

Lakás részletei

Ár: 100 000 000 Ft
Méret: 66 négyzetméter
Azonosító: 11570216
Irodai azonosító: M313703-5053381
Emelet: 2. emelet
Építőanyag: Tégla
Fűtés jellege: Házközponti (egyedi mérővel)
Ingatlan állapota: Épülő
Komfort fokozat: Összkomfort
Építési év: Új építésű
Kilátás: kertre néző
Egész szobák: 3

Egyéb jellemzők

  • Erkély
  • Garázs
  • Lift

Térkép


Így keressen lakást négy egyszerű lépésben. Csupán 2 perc, kötelezettségek nélkül!

Szűkítse a lakások
listáját
Válassza ki a megfelelő
lakást
Írjon a hirdetőnek
Várjon a visszahívásra