Eladó lakás Budapest VIII. ker 129 900 000 Ft

Leírás

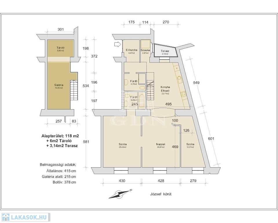
Corvin-negyed mellett kínálok eladásra egy gyönyörűen FELÚJÍTOTT igényesen berendezett, 1. emeleti, NAPFÉNYES, 118 nm-es,
3 szobás, zöld energiával hűtött-fűtött , nagypolgári stílusú ingatlant!


ELRENDEZÉS:
A terekben bővelkedő lakás két külön nyíló hálószobával, nappalival, konyha-étkezővel, álló galériával, két fürdőszobával továbbá tároló helységekkel, illetve tágas előszobával és belső udvarra néző erkéllyel (3,14 m2) rendelkezik.

A pár évvel ezelőtti felújítás során kiemelt figyelmet fordítottak a lakás történelmi belsőépítészeti értékeinek megőrzésére (pl. stukkók, rozetták, rézkilincsek és diagonális parketta).

-Víz- és az elektromos vezetékek kicserélésre kerültek,
-Burkolatok megújultak, egy infraszauna is helyet kapott,

-Modern (környezettudatos) ZÖLD árammal működő hőszivattyús hűtő-fűtő rendszer kialakítása is megtörtént,
melynek köszönhetően az új tulajdonos alacsony rezsiköltségekkel számolhat.

A lakás közösségi közlekedéssel is kiválóan megközelíthető, a 4-6-os villamos, a 2-es, 3-as és 4-es metróvonalak megállói pár percre találhatóak.

A környéken rengeteg étterem, kávézó, élelmiszerbolt és számos más szolgáltatás található.
Óvodák, iskolák, egyetemek és egészségügyi intézmények is vannak a közelben, így a lakás remek lehetőség gyermekes családok, időskorúak, de akár fiatalok számára is.

A házban engedélyezett a rövidtávúlakáskiadás (AIRBNB) is!!

Hivatkozási azonosító:
ID-366883


ENGLISH:
A fully renovated, well furnished, bright, 118 sqm apartment on the 1st floor in the heart of Budapest, in the Palace District.

The apartment has two separate bedrooms, a living room, a kitchen-dining room, a gallery, two bathrooms, storage rooms, a spacious entrance hall and a balcony (3.14 sqm) facing the inner courtyard.

During the renovation a few years ago, the owners paid special attention to preserve the historic interior (such as stucco, rosette, copper handles and diagonal parquet). The water and electrical wiring were replaced, the tiling was renewed, and an infrared sauna was added. A modern, environment-friendly green energy-powered heat pump cooling and heating system has also been installed, which will keep utility costs down for the new owner.

The apartment has excellent public transport access, with tram 4-6, metro 2, metro 3 and metro 4 stops just a few minutes away. The area is rich in restaurants, cafés, grocery stores and many other services. There are kindergartens, schools, universities and medical institutions nearby, making the apartment a great option for families, seniors and even young adults.

referenc number:
366883

Lakás részletei

Ár: 129 900 000 Ft
Méret: 118 négyzetméter
Azonosító: 11577954
Irodai azonosító: 389364
Cím: József körút
Emelet: 1. emelet
Építőanyag: Tégla
Fűtés jellege: Egyedi
Ingatlan állapota: Felújított
Komfort fokozat: Dupla komfort
Építési év: 50 évesnél régebbi
Tulajdonviszony: Saját
Kilátás: utcai
Egész szobák: 3
Fél szobák: 1

Egyéb jellemzők

  • Erkély
  • Garázs
  • Lift
  • Pince
  • Tároló
  • Kocsibeálló

Térkép


Így keressen lakást négy egyszerű lépésben. Csupán 2 perc, kötelezettségek nélkül!

Szűkítse a lakások
listáját
Válassza ki a megfelelő
lakást
Írjon a hirdetőnek
Várjon a visszahívásra