Eladó lakás Budapest VIII. ker 110 000 000 Ft

Leírás

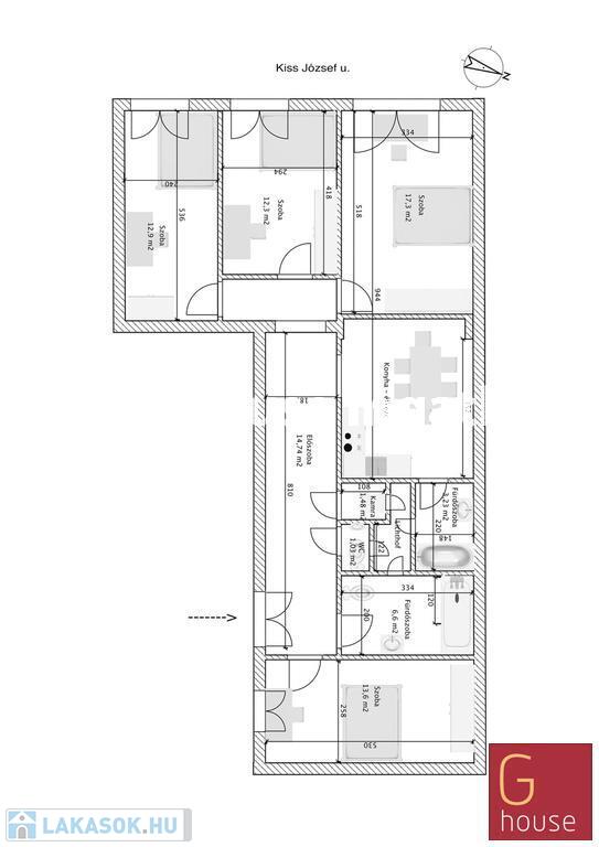
Eladó egy teljesen felújított, 98 m²-es, tehermentes, 1/1 tulajdonú lakás Budapest VIII. kerületében, a Kiss József utcában. Az ingatlan egy 3 emeletes épület legfelső szintjén található, lift nincs.

A lakásban 4 külön nyíló szoba található, ami ideálissá teszi akár több fő részére is. A konyha gépesített, beépített sütővel, főzőlappal, mosogatógéppel és elszívóval felszerelt. Az otthonban két fürdőszoba és két WC is helyet kapott.
A fűtésről gáz-cirkó gondoskodik egyedi mérőórával, a kellemes klímát pedig légkondicionáló biztosítja. A lakás nyugati tájolású.

Az ingatlan a Corvin negyed és a Keleti pályaudvar közelében fekszik, kiváló infrastruktúrával és közlekedési lehetőségekkel. A közelben bevásárlóközpontok, éttermek, boltok, orvosi rendelő és oktatási intézmények is sétatávolságra vannak.

A tömegközlekedés is ideális, a 4-es és 6-os villamos, valamint az M2-es és M4-es metró is könnyen elérhető.

Vételár: 110 millió Ft
Közös költség: 34 228 Ft (tartalmazza a felújítási alapot és a biztosítást)

Az ingatlan ki van adva.
Jelenlegi bérleti díj: 1200 €/hó + rezsi (a bérleti szerződés 2025. szeptember 30-ig szól, átvállalható)

Lakás részletei

Ár: 110 000 000 Ft
Méret: 98 négyzetméter
Azonosító: 11565677
Irodai azonosító: 14399
Cím: Kiss józsef utca
Emelet: 3. emelet
Építőanyag: Tégla
Ingatlan állapota: Átlagos
Kilátás: utcai
Egész szobák: 4

Egyéb jellemzők

  • Erkély
  • Klíma
  • Lift
  • Pince

Így keressen lakást négy egyszerű lépésben. Csupán 2 perc, kötelezettségek nélkül!

Szűkítse a lakások
listáját
Válassza ki a megfelelő
lakást
Írjon a hirdetőnek
Várjon a visszahívásra