Eladó lakás Budapest VII. ker 80 900 000 Ft

Leírás

Modern igényesen felújított lakás eladó!

Két lakássá alakított ingatlan " A" jelű lakását kínáljuk megvételre a Damjanich utca kedvelt részén, liftes ház 2. emeletén.

Az ingatlan teljeskörűen felújított, minőségi bútorokkal és gépekkel berendezett, minden részletét gondosan megtervezték.
A lakás világos, tágas érzetet nyújt, minden helyiségén ablak van.
Használati megosztással kerül értékesítésre.

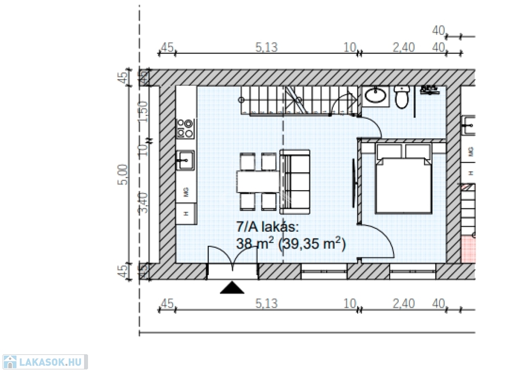
" A"- lakás rendkívül jó beosztású, hasznos alapterülete 61 nm.
- alapterület 38 nm.
- beosztása:
- előtér,
- konyha + étkező + nappali,
- hálószoba,
- fürdőszoba +WC,

- teljesértékű galéria 23 nm.
- beosztása:
- hálószoba,
- gardrób szoba,
Ebben a lakásban a fűtés gáz Mika kazánnal történik +1 db hűtő-fűtő klíma van.
A fűtés, villanybojler, redőnyök, lámpák, mosógép távolról vezérelhető.
A konyhák gépesítettek.
A lakás külön mérőórákkal rendelkezik.

Az ingatlan befektetésnek is kíváló, könnyen kiadható az Állatorvosi Egyetem és a turisztikai látványosságok közelsége miatt.
A környék rendkívül kedvelt, a Városliget, a Hősök tere és az Andrássy út néhány perc sétával elérhető.

Amivel segítjük az Ön ingatlanvásárlását:
- ingyenes hitelügyintézés,
- jogi háttér,
- földhivatali ügyintézés,
- energetikai tanúsítvány,
- a vevő számára az ingatlanközvetítés ingyenes.

Irodánk 30 éves szakmai tapasztalattal áll ügyfelei rendelkezésére!

Várom szíves megkeresését!

Lakás részletei

Ár: 80 900 000 Ft
Méret: 61 négyzetméter
Azonosító: 11603811
Irodai azonosító: 393309
Cím: Ligetváros
Emelet: 2. emelet
Építőanyag: Tégla
Fűtés jellege: Héra
Ingatlan állapota: Felújított
Komfort fokozat: Összkomfort
Építési év: 50 évesnél régebbi
Tulajdonviszony: Saját
Kilátás: udvari
Egész szobák: 3

Egyéb jellemzők

  • Erkély
  • Garázs
  • Lift
  • Pince
  • Tároló

Térkép


Így keressen lakást négy egyszerű lépésben. Csupán 2 perc, kötelezettségek nélkül!

Szűkítse a lakások
listáját
Válassza ki a megfelelő
lakást
Írjon a hirdetőnek
Várjon a visszahívásra