Eladó lakás Budapest VII. ker 67 900 000 Ft

Leírás

***VII. kerület, DOHÁNY utcában, a kőrúton belül, FELÚJÍTOTT, GALÉRIÁS, BERENDEZETT GARZON eladó!***

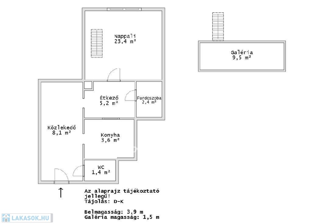
Ez a nagypolgári stílusban épült lakás a tulajdoni lapon 41 m2-es, a valóságban viszont 44 m2 alapterületű!
Az ingatlanoz egy kényelmes méretű GALÉRIA is tartozik, így a hasznos élettér ennél is nagyobb.
A közel 4 méteres belmagasság TÁGAS, levegős érzetet biztosít, a galéria kiválóan használható hálórészként vagy dolgozósarokként, így a nappali teljes értékű élettér marad.

A lakás asztalos által MÉRETRE GYÁRTOTT bútorokkal, GARDRÓB szekrényekkel BERENDEZETT, amelyek a vételár részét képezik.
Egy egyszerű tisztasági festés után szinte teljesen új állapotú otthont kapunk, az ingatlan gondosan KARBANTARTOTT és azonnal költözhető.

A DK-i tájolásnak köszönhetően a lakás kifejezetten VILÁGOS és NAPFÉNYES, ami egész nap kellemes hangulatot teremt.

Az ingatlan KIVÁLÓAN alkalmas első lakásnak, pároknak, egyedülállóaknak, vagy BEFEKTETŐKNEK a lakás könnyű KIADHATÓSÁGA miatt.

KIVÁLÓ ELHELYEZKEDÉS és KITŰNŐ KÖZLEKEDÉS jellemzi az ingatlant, mivel minden karnyújtásnyira megtalálható, ami a kényelmes nagyvárosi élethez szükséges, az M2 metró Astoria és Blaha Lujza tér megállója, valamint számos busz és villamosjárat, így a város bármely pontja gyorsan megközelíthető.
A környéken éttermek, kávézók, üzletek, egyetemek, kulturális és szórakozási lehetőségek széles választéka található.

Ha szereti a BELVÁROS PEZSGÉSÉT, de hazaérve egy NYUGODT környezetre vágyik, akkor ez a lakás teljes mértékben megfelelő az ön igényeinek.

Ha ingatlan vásárlásával egy ÉRTÉKÁLLÓ BEFEKTETÉST is szeretne egyben, akkor ez egy remek lehetőség az ön számára.

Az OTP Ingatlanpont, mint egyetlen közvetlen banki hátterű ingatlanközvetítő társaság teljes körű ügyintézéssel és kedvezményes pénzügyi konstrukciókkal áll ügyfelei rendelkezésére!
VIP-szolgáltatást nyújtunk az OTP-hiteltermékek ügyintézésében.
Jogi és pénzügyi segítséget nyújtanak szakértőink, hogy az adásvétel folyamata gördülékeny legyen.

Ha felkeltette érdeklődését az ingatlan, kérem, hívjon bizalommal akar hétvégén is!

Lakás részletei

Ár: 67 900 000 Ft
Méret: 41 négyzetméter
Azonosító: 11610812
Irodai azonosító: M323028-5189234
Cím: Budapest 7. ker.i eladó 41 nm-es lakás
Emelet: 1. emelet
Építőanyag: Tégla
Fűtés jellege: Cirkó
Ingatlan állapota: Kitűnő
Komfort fokozat: Összkomfort
Építési év: 50 évesnél régebbi
Kilátás: utcai
Egész szobák: 1

Egyéb jellemzők

  • Lift

Térkép


Így keressen lakást négy egyszerű lépésben. Csupán 2 perc, kötelezettségek nélkül!

Szűkítse a lakások
listáját
Válassza ki a megfelelő
lakást
Írjon a hirdetőnek
Várjon a visszahívásra