Eladó lakás Budapest VII. ker 45 900 000 Ft

Leírás

(for English scroll down)

Budapest szívében, a Dohány utcai Zsinagóga közvetlen szomszédságában kínálunk megvételre egy igazán különleges, 18 nm-es + galériás, gyönyörűen felújított kis lakást.

A lakás minden részlete átgondolt: a praktikus kialakításnak és a kényelmes galériának köszönhetően a tér meglepően tágas érzetet nyújt. A galéria ideális hálórésznek, így a nappali élettér teljes egészében kihasználható marad. A modern felújítás során minőségi burkolatok, letisztult design és helytakarékos megoldások kerültek beépítésre – itt valóban minden centiméter a kényelmet szolgálja.

Az ingatlan elhelyezkedése egyszerűen páratlan: a 7. kerület pezsgő belvárosi hangulata, hangulatos kávézók, éttermek, üzletek és kulturális lehetőségek mind néhány lépésre találhatók. A közlekedés kiváló – metró, villamos, busz a közelben, így a város bármely pontja gyorsan és könnyedén elérhető.

Ez a lakás tökéletes választás első otthonnak, belvárosi bázisnak vagy akár befektetésnek is.

Ha egy stílusos, azonnal költözhető, igazi belvárosi ékszerdobozt keresel, amely egyszerre otthonos és értékálló, ne keress tovább – ez a lakás rád vár!

Irányár: 45.900.000 Ft
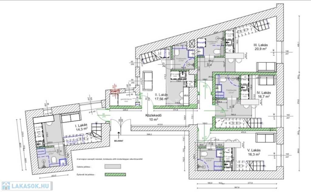
(Az alaprajzon az 5. számú lakás.)

ID392831

In the heart of Budapest, right next to the Dohány Street Synagogue, we are offering a truly unique, beautifully renovated 18 m² apartment with a gallery for sale.

Every detail of the apartment has been carefully thought out: thanks to its practical layout and comfortable gallery, the space feels surprisingly spacious. The gallery is ideal as a sleeping area, leaving the living room completely free for other uses. The modern renovation features high-quality finishes, clean design and space-saving solutions – every centimeter here is designed for comfort.

The location of the property is simply unparalleled: the bustling downtown atmosphere of the 7th district, cozy cafes, restaurants, shops, and cultural opportunities are all just a few steps away. Transportation is excellent – metro, tram, and bus are nearby, so any point in the city can be reached quickly and easily.

This apartment is the perfect choice for a first home, a downtown base, or even an investment.

If you are looking for a stylish, ready-to-move-in, true downtown gem that is both cozy and valuable, look no further – this apartment is waiting for you!

Asking price: 45,900,000 HUF
(Apartment no. 5 on the floor plan.)

ID392831

Lakás részletei

Ár: 45 900 000 Ft
Méret: 18 négyzetméter
Azonosító: 11601217
Irodai azonosító: 392831
Cím: Dohány utca
Emelet: 2. emelet
Építőanyag: Tégla
Fűtés jellege: Villany
Ingatlan állapota: Felújított
Komfort fokozat: Összkomfort
Építési év: 50 évesnél régebbi
Tulajdonviszony: Saját
Kilátás: utcai
Egész szobák: 1

Egyéb jellemzők

  • Erkély
  • Garázs
  • Lift
  • Pince
  • Tároló

Térkép


Így keressen lakást négy egyszerű lépésben. Csupán 2 perc, kötelezettségek nélkül!

Szűkítse a lakások
listáját
Válassza ki a megfelelő
lakást
Írjon a hirdetőnek
Várjon a visszahívásra