Eladó lakás Budapest VI. ker 89 900 000 Ft

Leírás

Eladó egy lakás a 6. kerületben!

A lakás a XIX. század végén épült.
Egy teljesen renovált, liftes, 15 lakásos csendes társasház 3 emeletén található meg.
A fűtésrendszer, a hidegburkolatok, a bejárati ajtó és a vezetékek 2005-ben lettek felújítva és korszerűsítve, az ablakok pedig tavaly nyáron vákuum üvegek beszerelésével kerültek felújításra.
Festés, mázolás tavaly ősszel történt, az azt megelőző évben pedig a légkondicionáló készülékek beszerelése került kivitelezésre.

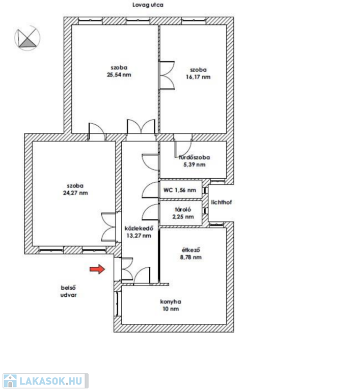
A csendes, világos lakásban két nagyobb és egy kisebb szoba található.
Utóbbi a fürdőszoba felől is megközelíthető, ezáltal minden szoba külön bejárattal is rendelkezik.
A konyha-étkező üvegfallal van elválasztva az előszobától, így egyszerre tágas, ugyanakkor biztosítja a konyhai szagok elzárását.
Az előszobában nagy beépített szekrény, illetve a kamra helyiség teszi teljessé a lakás felszereltségét. Szükség esetén akár galéria is kialakítható.

A lakás ideális választás lehet azoknak, akik szeretik a polgári lakások eleganciáját és tágasságát, ugyanakkor központi elhelyezkedésének köszönhetően vállalkozások részére (pl. iroda, rendelő) is jó választás.

A rezsi költség rendkívül kedvező, nagyjából 40 E Ft/hónap
Az ingatlan eladási ára: 89,9 M Ft.

Amennyiben hirdetésem felkeltette érdeklődését, kérem forduljon hozzám bizalommal!

Lakás részletei

Ár: 89 900 000 Ft
Méret: 107 négyzetméter
Azonosító: 9767931
Cím: 6. kerület, Lovag utca
Emelet: 3. emelet
Építőanyag: Kérdezzen rá a hirdetőtől »
Ingatlan állapota:
Komfort fokozat: Összkomfort
Elhelyezkedés: Társasház
Egész szobák: 3

Térkép


Így keressen lakást négy egyszerű lépésben. Csupán 2 perc, kötelezettségek nélkül!

Szűkítse a lakások
listáját
Válassza ki a megfelelő
lakást
Írjon a hirdetőnek
Várjon a visszahívásra