Eladó lakás Budapest VI. ker 88 189 500 Ft

Leírás

Körúton belül, a belváros egyik központi részén, az Oktogon, és a Nyugati pályaudvar között, épül a főváros egyik exkluzív fejlesztése!
Összesen 12 db új építésű lakás!

A lakások egyedisége egyrészt a régi idők és a modern kor ötvözetében rejlik. Egy klasszikus épület, melynek teljes körű felújítása során, a legfelső szinten 12 modern, tetőteraszos okos otthon kerül kialakításra.

Burkolatot, szanitereket, beltéri ajtók a mintakollekcióból a vevő kiválaszthatja!
Az ingatlan fűtése rendkívül energiatakarékos, hőszivattyús rendszerrel lesz kiépítve, a hő leadás a padló illetve mennyezetfűtésen keresztül történik.

A beépített konyhabútort kivéve az ÁR MINDENT TARTALMAZ!

Az ingatlanok átadása: 2026. 2.negyedév
Fizetési ütemezés:
25% Előszerződéskor
25% Szerkezetkész állapot
25% Nyílászárók beépítése, szigetelés megtörtént
25% Használatbavételi engedély
Ha valaki hitelből vásárolna, arra is van lehetőség,

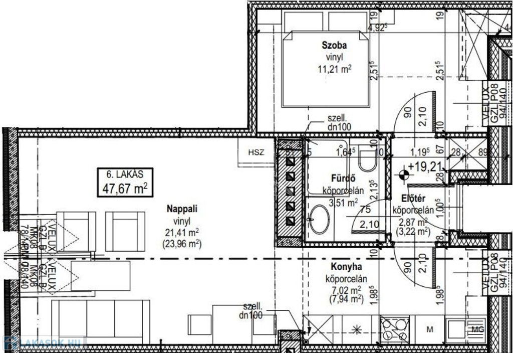
6 os lakás

Lakás részletei

Ár: 88 189 500 Ft
Méret: 47 négyzetméter
Azonosító: 11562875
Irodai azonosító: 386938
Cím: Weiner Leó utca
Emelet: 4. emelet
Építőanyag: Tégla
Fűtés jellege: Hőszivattyú
Ingatlan állapota: Kitűnő
Komfort fokozat: Összkomfort
Építési év: Új építésű
Tulajdonviszony: Saját
Kilátás: udvari
Egész szobák: 2

Egyéb jellemzők

  • Erkély
  • Garázs
  • Lift
  • Pince
  • Tároló

Térkép


Így keressen lakást négy egyszerű lépésben. Csupán 2 perc, kötelezettségek nélkül!

Szűkítse a lakások
listáját
Válassza ki a megfelelő
lakást
Írjon a hirdetőnek
Várjon a visszahívásra