Eladó lakás Budapest VI. ker 476 434 000 Ft

Leírás

A Szent István Bazilika és az Opera szomszédságában épül a főváros egyik legexkluzívabb fejlesztése.
A lakások egyedisége egyrészt a régi idők és a modern kor ötvözetében rejlik.
Egy klasszikus épület, melynek teljes körű felújítása során, a legfelső szinten, a padlástéren 4 modern, tetőteraszos okos otthon kerül kialakításra.
A Belváros szívében vagyunk, ahol a színházak, éttermek, hangulatos kávéházak és az Andrássy úton található számos vásárlási lehetőségek teszik színesebbé a mindennapjainkat.
Ebben az inspiráló környezetben, panorámás kilátással, a modern kor technológiájával felszerelt lakások várják a leendő új lakókat.
ZÖLD HITEL igényelhető!
4 db lakás
41-139 m² lakások
1-es lakás

Lakás részletei

Ár: 476 434 000 Ft
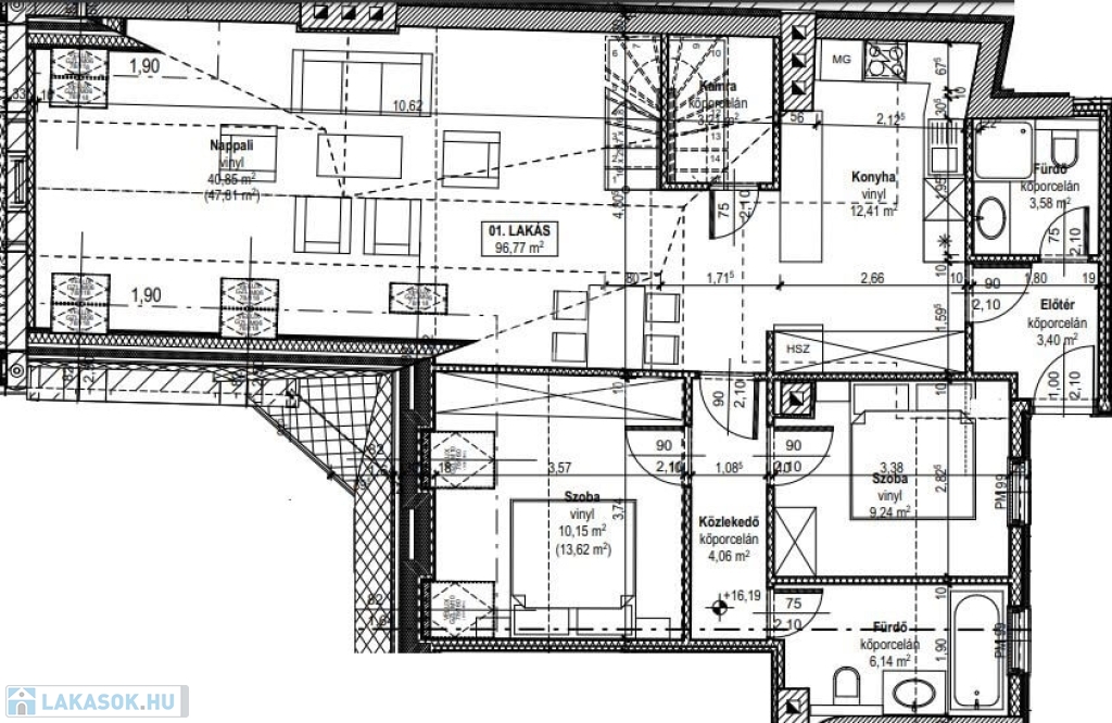
Méret: 105 négyzetméter
Azonosító: 11428980
Irodai azonosító: 337354
Cím: Lázár utca
Emelet: 4. emelet
Építőanyag: Tégla
Fűtés jellege: Egyedi
Ingatlan állapota: Kitűnő
Komfort fokozat: Dupla komfort
Építési év: Új építésű
Tulajdonviszony: Saját
Kilátás: panorámás
Egész szobák: 4

Egyéb jellemzők

  • Erkély
  • Garázs
  • Lift
  • Pince
  • Tároló

Térkép


Így keressen lakást négy egyszerű lépésben. Csupán 2 perc, kötelezettségek nélkül!

Szűkítse a lakások
listáját
Válassza ki a megfelelő
lakást
Írjon a hirdetőnek
Várjon a visszahívásra