Eladó lakás Budapest VI. ker 249 900 000 Ft

Leírás

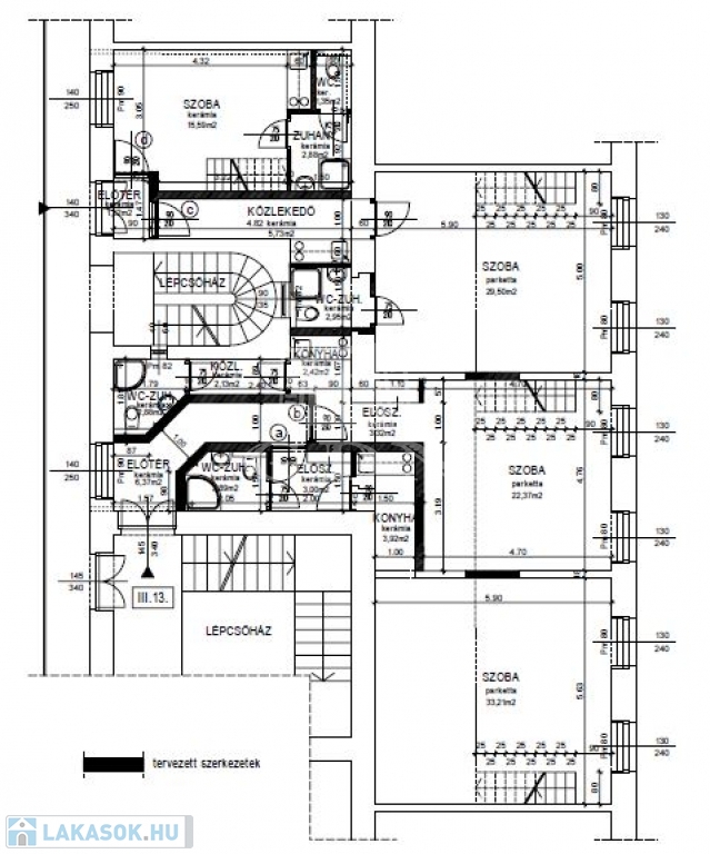
Eladó négy lakrészes luxus ingatlan a belvárosban!

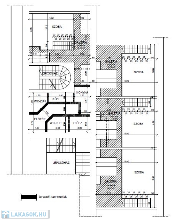
Liftes társasház 3. emeletén négy apartmanlakásból álló, összesen 140 m2 + 50 m2 galériával rendelkező ingatlan kerül értékesítésre.
2020-ban teljeskörű felújításon esett át. Projekt része volt a víz és elektromos hálózat, fa nyílászárók, hideg-meleg burkolatok és világítótestek cseréje, galériák kiépítése.
az ideális hőmérsékletet padlófűtés és inverteres klímák biztosítják.
Az apartmanok biztonságáról elektromos okos-zárak gondoskodnak.

Minden lakrész különböző dizájnnal, saját konyhával és fürdőszobával rendelkezik.

Mivel az ingatlan a legfelső szinten helyezkedik el, így rendkívül világos. Ablakok utcára és a belső udvarra is néznek.

Amennyiben kérdése van, vagy szeretné megtekinteni keressen

Közlekedés kiváló, Deák-Ferenc tér néhány perc, de gyalogosan vagy e-rollerrel is minden könnyen elérhető.
Budapest pezsgő világa egy karnyújtásnyira! Szórakozás, kultúra, művészet egyaránt fellelhető, közelben Gozsdu udvar, színházak, Operaház.

Kiváló vétel befektetőknek, AIRBNB és parkolási engedély átíratható.
Ha nem befektetési céllal vásárolna, akkor is nézze meg, hiszen több generáció részére is alkalmas a lakás.

Megtetszett? Nincs más dolga, mint hívjon, egyeztessünk időpontot és nézze meg!

Hitelre vásárló ügyfeleinknek teljeskörű, ingyenes, bank semleges ügyintézéssel állunk rendelkezésére.

Irodánk ügyvédje kedvező díjszabással vállalja az adásvételi szerződés elkészítését.

Amennyiben még el kell adnia ingatlanát, kérem, tiszteljen meg bizalmával, segítek eladni!

Sz.P.

Lakás részletei

Ár: 249 900 000 Ft
Méret: 140 négyzetméter
Azonosító: 11350759
Irodai azonosító: 328709
Cím: Paulay Ede utca
Emelet: 3. emelet
Építőanyag: Tégla
Fűtés jellege: Villany
Ingatlan állapota: Felújított
Komfort fokozat: Luxus komfort
Építési év: 50 évesnél régebbi
Tulajdonviszony: Saját
Kilátás: utcai
Egész szobák: 4

Egyéb jellemzők

  • Erkély
  • Garázs
  • Lift
  • Pince
  • Tároló

Térkép


Így keressen lakást négy egyszerű lépésben. Csupán 2 perc, kötelezettségek nélkül!

Szűkítse a lakások
listáját
Válassza ki a megfelelő
lakást
Írjon a hirdetőnek
Várjon a visszahívásra