Eladó lakás Budapest VI. ker 514 000 Euro

Leírás

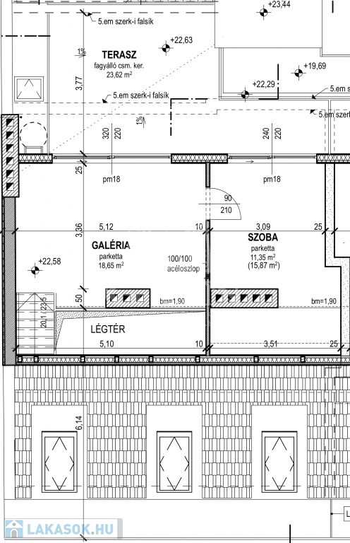
Operaház közelében ajánljuk figyelmébe ezt az azonnal költözhető, három hálószobás, duplakomfortos, nagy teraszos ingatlant melynek teraszáról kilátás nyílik az Operaház kupolájára. A lakás zárt lépcsőházból megközelíthető, belsőkétszintes, a nappalival egyszinten kapott helyet két darab hálószoba melyekhet tartozik egy-egy darab fürdőszoba, a nappalival egylégtérben de mégis elkülönülve a konyha. a nappaliból nyíló erkély a hálószobából is megközelíthető, a felső szinten a "galéria szobából" nylik a harmadik háló és innen megközelíthető a tetőterasz is. Elhelyezkedésének köszönhetően jók akár a hosszú távú bérbeadásra vonatkozó kilátások.

Lakás részletei

Ár: 514 000 Euro
Méret: 106 négyzetméter
Azonosító: 11277368
Irodai azonosító: 282329
Cím: Opera loft
Emelet: 5. emelet
Építőanyag: Tégla
Fűtés jellege: Cirkó
Ingatlan állapota: Kitűnő
Komfort fokozat: Dupla komfort
Építési év: Új építésű
Tulajdonviszony: Saját
Kilátás: utcai
Egész szobák: 5

Egyéb jellemzők

  • Erkély
  • Garázs
  • Lift
  • Pince
  • Tároló

Térkép


Így keressen lakást négy egyszerű lépésben. Csupán 2 perc, kötelezettségek nélkül!

Szűkítse a lakások
listáját
Válassza ki a megfelelő
lakást
Írjon a hirdetőnek
Várjon a visszahívásra