Eladó lakás Budapest VI. ker 194 520 000 Ft

Leírás

Új Építésű Lakás Egyedi Enteriőrrel

Az Andrássy út közelségében, Budapest szívében kínálok eladásra egy új építésű duplex lakást, amelyben a modern kényelem és városi életstílus harmonikusan összeolvad.
Az apartman kiváló elhelyezkedése lehetővé teszi a város felfedezését. Az Andrássy út és a közeli kulturális és szórakozási lehetőségek várnak felfedezésre.
A város legkiválóbb színházai és kulturális intézményei közvetlenül a lakás közelében találhatóak. A művészet és a pihenés mindig kéznél van, gazdagítva az életedet.
A jelenlegi gazdasági helyzetben az ingatlan vásárlása kiváló és alacsony kockázatú befektetési lehetőséget jelent. Az ingatlanok az infláció elleni védelmet nyújtják, és hosszú távon stabil értéknövekedést generálhatnak.
Hatékony Fűtés & Hűtés:
A modern és energiahatékony rendszerrel van felszerelve, amely nem csak kényelmes, de fenntartása is költséghatékony.
Napfényes Pihenés:
A napfény szerves részévé válik mindennapi életednek ebben az ingatlanban. A tágas helyiségek és a természetes fény inspiráló hangulatot teremtenek.
Időtlen Elegancia:
Az épület klasszikus stílusa harmóniában van a városi környezettel, vonzó vizuális hatást nyújtva. A felújított homlokzat és a gondosan megtervezett részletek stílusos háttért teremtenek.
Személyre Szabott Terek:
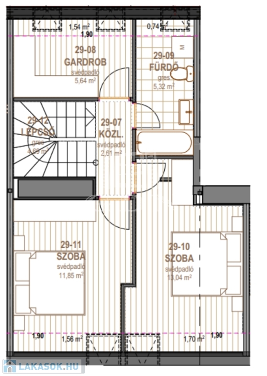
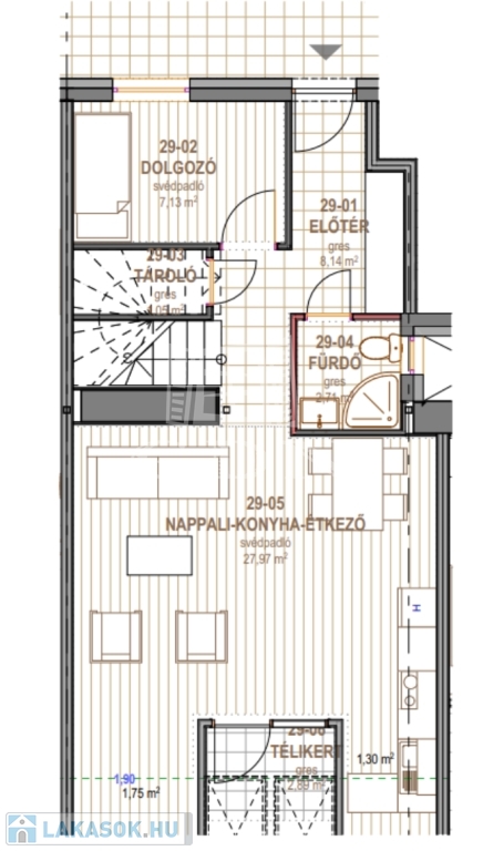
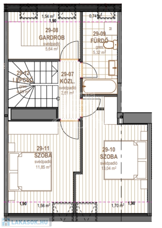
Az enteriőrt személyre szabottan alakítjuk ki, így otthonod megfelel az igényeidnek és kifejezi egyediségedet .Az apartman három hálószobához kétl fürdőszoba tartozik, valamint egy 3m2-es loggia is. A pontos beosztás az alaprajzon látható.

Ne hagyd ki ezt a különleges lehetőséget, hogy Budapest szívében, az Andrássy út közelében élvezd a modern városi életet saját egyedi otthonodban, miközben stabil befektetést hozol létre az infláció ellen!
Egyedi Konyha-Nappali Egység:
Az apartmanban a konyha és a nappali együtt alkot egy egységet.
Ragadd meg ezt az alkalmat, hogy otthonodat a lélegzetelállító Budapest szívében, az Andrássy út közvetlen közelében hozd létre, és élvezd a modern városi élet minden kényelmét és varázsát, miközben okos befektetéssel védekezel az infláció ellen!

Lakás részletei

Ár: 194 520 000 Ft
Méret: 97 négyzetméter
Azonosító: 11310305
Irodai azonosító: 356298
Cím: Belső Terézváros
Emelet: 5. emelet
Építőanyag: Tégla
Fűtés jellege: Hőszivattyú
Ingatlan állapota: Kitűnő
Komfort fokozat: Dupla komfort
Építési év: Új építésű
Tulajdonviszony: Saját
Kilátás: utcai
Egész szobák: 4

Egyéb jellemzők

  • Erkély
  • Garázs
  • Lift
  • Pince
  • Tároló

Térkép


Így keressen lakást négy egyszerű lépésben. Csupán 2 perc, kötelezettségek nélkül!

Szűkítse a lakások
listáját
Válassza ki a megfelelő
lakást
Írjon a hirdetőnek
Várjon a visszahívásra