Eladó lakás Budapest VI. ker 166 500 000 Ft

Leírás


Prémium életstílus Budapest szívében – új építésű téglalakás eladó a VI. kerületben

Képzelje el, hogy Budapest belvárosában, a Budapest VI. kerület egyik legkeresettebb részén találja meg új otthonát: egy különleges, új építésű téglalakást, amely nem csupán lakóhely, hanem életstílus is.

Az ingatlan 2026-ban kerül átadásra, és 84 m²-es alapterületével ideális teret biztosít a modern, városi életvitelhez – legyen szó saját otthonról vagy értékálló befektetésről.

 

Lakás főbb jellemzői

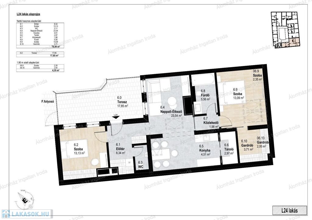
Alapterület: 84 m²

Új építésű, téglalakás

Kiváló műszaki és esztétikai állapot

Összkomfortos kialakítás

Házközponti fűtés egyedi mérési lehetőséggel

Korszerű gépészet, modern műszaki megoldások

Energetikai besorolás: A+++ (kiemelkedően alacsony energiafogyasztás)

 

Elhelyezkedés és környezet

Belvárosi lokáció, pezsgő városi élet

Kiváló közlekedés, gyors elérhetőség a város minden pontjához

Éttermek, kávézók, kulturális és szolgáltató egységek a közelben

Ideális választás azoknak, akik a városi kényelmet és minőséget keresik

 

További információk

Parkolás: utcán, fizetős övezetben

Az ingatlan nem akadálymentesített

Új építésű társasház, modern megjelenéssel

Alacsony fenntartási költségek, hosszú távon is fenntartható megoldások

 

 

 

✨ Ez az ingatlan nemcsak otthon, hanem biztos érték a jövőre nézve is.

Ritka lehetőség új építésű lakás vásárlására Budapest egyik legjobb belvárosi lokációjában.

 


Lakás részletei

Ár: 166 500 000 Ft
Méret: 84 négyzetméter
Azonosító: 11593156
Irodai azonosító: 730800010
Emelet: 3. emelet
Építőanyag: Tégla
Fűtés jellege: Házközponti (egyedi mérővel)
Ingatlan állapota: Kitűnő
Komfort fokozat: Összkomfort
Építési év: Új építésű
Egész szobák: 3

Egyéb jellemzők

  • Lift

Így keressen lakást négy egyszerű lépésben. Csupán 2 perc, kötelezettségek nélkül!

Szűkítse a lakások
listáját
Válassza ki a megfelelő
lakást
Írjon a hirdetőnek
Várjon a visszahívásra